Lokace: Nová Ves nad Nisou, ČR
Investor: soukromý investor
Projekt: 2024
Zastavěná plocha: 307 m²
Autor: Jan Mach, Igor Nesterov, Tereza Podzimek

Nisanka

Dům pro mladou rodinu bude stát na svažitém pozemku, v luční krajině, nedaleko lesa, v Nové Vsi nad Nisou. V bezprostřední blízkosti pozemku se rozprostírá rozlehlá nezastavitelná louka sahající až k okraji lesa, kde se nedaleko nad vsí tyčí rozhledna Nisanka, po které získal nový dům jméno. Nisanka je výsledkem snahy navrhnout současný a velkorysý dům, charakterem zapadající jak do rozvolněné vesnické zástavby, tak do krajiny Jizerských hor.
Několik základních principů využívá předností pozemku. Posunutí dále od hrany ulice, zajistí budoucím obyvatelům soukromí a lepší rozhled. Natočená hmota domu rovnoběžně k vrstevnicím, umožní přirozenější usazení. Kompaktní půdorysná stopa, je miniálním zásahem do terénu. V neposlední řadě, maximálně prosklená fasáda prvního patra, odlehčí a dodá nejen vizuální prostupnost a kontakt s exteriérem.

Vepředu business, vzadu párty. Z ulice střízlivý dům, na nic si nehraje a snaží se v tichosti zapadnout do okolí. Je racionální a chytře využívá jižní orientace střechy pro umístění solárních panelů. Z pohledu od lesa, to je ale úplně jiný příběh, pořádná divočina. Zelená střecha, díky zapuštění do terénu, vizuálně splyne s loukou. Jediné, co zejména v noci prozradí, že tu něco nehraje, je šestero kulatých světlíků. Dům vykukuje do krajiny jako lesní tvor. Fasádní obklad dostane tmavou úpravu, bude přirozeně stárnout a dělat parádu mnoho let.
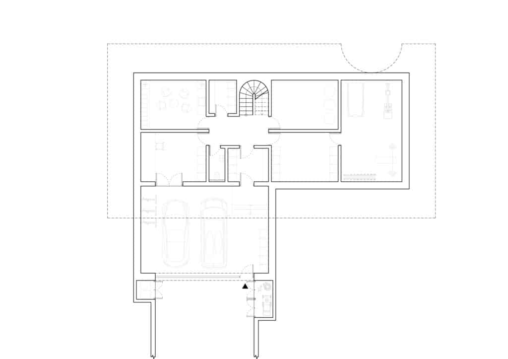
Ač velkorysý dům, má působit kompaktní a přirozeně usazený na pozemku. Velkorysé podzemní patro jsme plně schovali pod terén. Jediné co z něj kolemjdoucí zahlédne, jsou garážová vrata. Samotná garáž je oproti vstupnímu patru utopena o půl metru. Terén se tak přirozeně přelije a vizuálně oddělí garáž od hlavní hmoty domu, sedícího samostatně na terénu.

No pozemku už kromě domu žádná stavba nevznikne, vše potřebné, zahradní domek či odpad, jsme šikovně schovali do zídky podél příjezdové cesty. Zatravněná příjezdová cesta a přilehlý malý plácek pro míčové hry, jsou jediné navržené terénní úpravy.

Dispozice domu není složitá, ale dobře promyšlená. Velkorysé podzemní patro obsáhne všechny obslužné prostory a splní všechny touhy budoucích obyvatel. Je-libo posilovna, vinný sklípek pro posezení s přáteli, dílna pro kutila, nebo třeba hudební zkušebnu pro zakládání kapely.


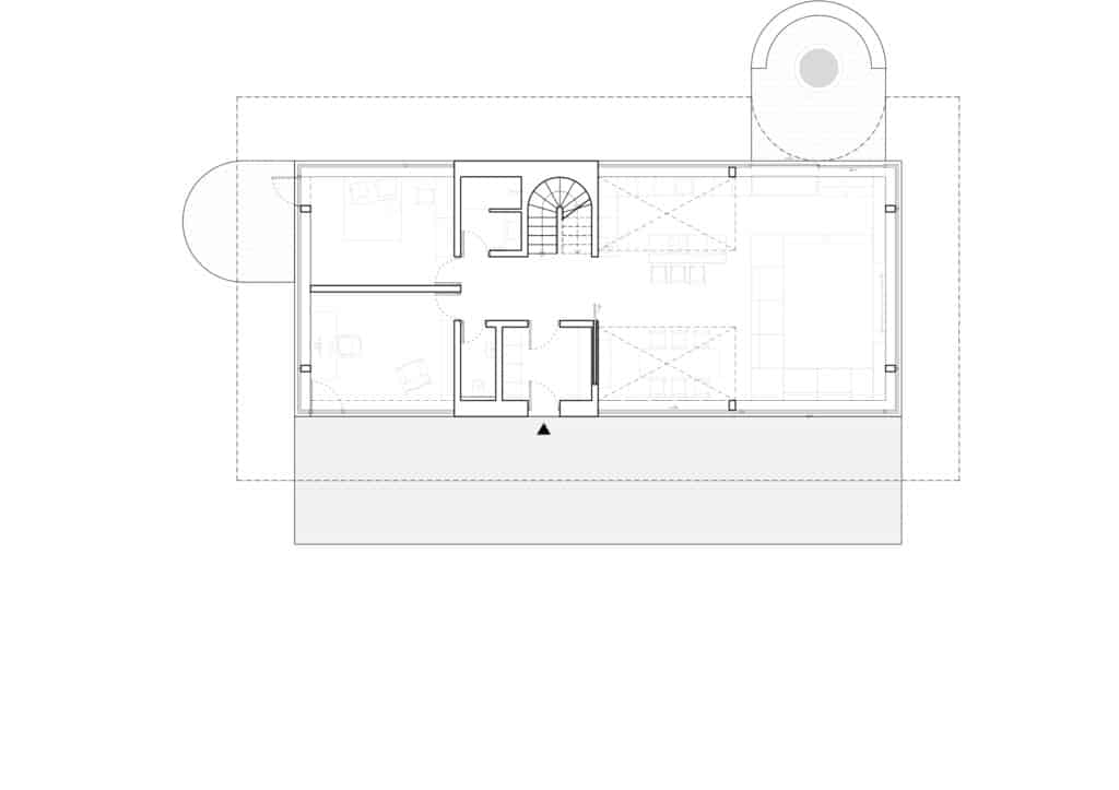
Z chodby stoupáme do patra po zaoblených schodech. Ocitneme se v hlavním obytném patře, obslužné jádro se vstupní halou se půdorysně propisuje ve všech podlažích. Zbytek dispozice tvoří lehká dřevěná konstrukce vyplněná skleněnými tabulemi, prosklená fasáda zve krajinu dovnitř a rozšiřuje obytný prostor.


Zasazení domu do svažitého terénu tvoří dvojí plán. Jižní terasa, podél celé fasády, navazuje na výšku podlahy obytného patra. Ze severu je dům utopen do terénu. Každý pohled má svůj jedinečný charakter. Velkorysý prostor kuchyně, jídelny a obývacího pokoje je charakteristický změnami výškových úrovní a nespočtem neformálních odpočinkových míst.

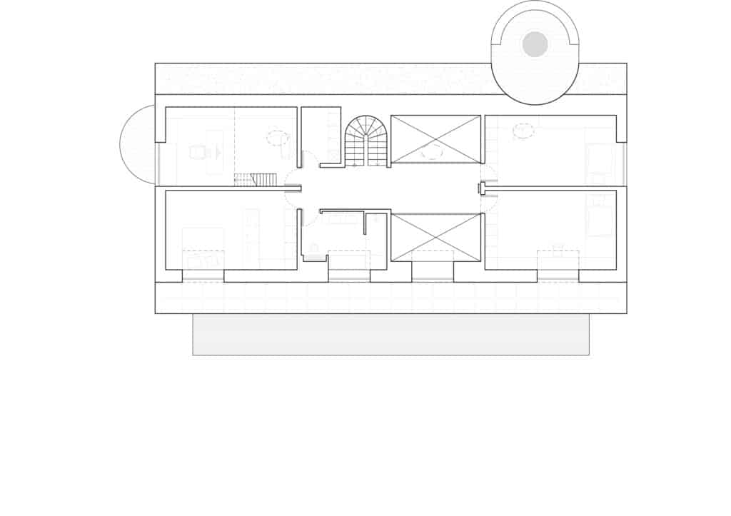
Pro naše domy už téměř charakteristický přesah střechy nejen chrání v létě před přehříváním, stíní před příkrým letním sluncem po celé délce terasy, ale zároveň zvětšuje obytnou plochu posledního patra. Podkroví je soukromím místem, jen pro obyvatele domu. Po jedné straně ložnice rodičů a pracovna, ze které po příkrých schodech vystoupáme na nostalgickou půdičku. Na straně druhé, dva dětské pokoje, půdorysně totožné, ale přesto úplně jiné. Prostorná chodba, otevřena do přízemí, je zároveň i hernou. Navíc i nad dětskými pokoji, zůstal prostor pro malou půdičku.
Materiálové řešení interiéru reflektuje lásku klientů ke dřevu, zároveň ale nemá připomínat chalupu, ale moderní bydlení. Temný tón exteriéru kontrastuje se světlým útulným interiérem. Důležitou součástí domu je vestavěný nábytek, vytváří propracovaný systém úložných prostor a vnáší další úroveň osobitého charakteru bydlení.
Na jedné straně prosvětlují podkroví kulaté světlíky jako oči do krajiny. Na straně druhé velká posuvná okna vytvářejí pobytové parapety, s rozličným využitím a dodávají tak jedinečný charakter každému z pokojů.