Malé a středně velké obce v Česku nemají úplně lehkou úlohu. Mnoho z nich bojuje s odlivem obyvatel, stárnoucí populací a ambivalentním vztahem ke gravitaci velkých měst a metropolí. Některé zase vzdorují tlakům, které představují zájmy průmyslu nebo cestovního ruchu. Jedním z nástrojů, které mohou obce využívat k ovlivňování své vlastní situace je vlastní bytový fond. Výstavbou obecních bytů, jejich rozdělováním a regulováním může obec lákat mladé rodiny, tolik potřebné profese lékařů a ze strany nabídky ovlivňovat tržní cenu nájmů. Vlastní stavební aktivitou se ale také obec může stát iniciátorem dialogu o tom, za jakých podmínek, kdy a kde stavět, v jaké formě a kvalitě. Může tak jít soukromým stavebníkům příkladem.
Věříme, že malým obcím ještě neodzvonilo a budou, navzdory dobíhajícímu procesu urbanizace, dobrými místy k životu. S postupnou změnou povahy práce, digitalizace a většího příklonu k práci na dálku se malé obce stávají atraktivními místy pro život pro svou uchopitelnost, dostupnější cenu bydlení ale i blízkosti krajině. Právě proto nás mrzí když vidíme za vesnicemi a městečky vyrůstat generické domy, které by mohly stát úplně kdekoliv, na místech kde ještě včera bylo pole, louka nebo les.
Roztahování výstavby na úkor krajiny je snadné pro developery a projektanty. Jedná se většinou o velmi nekomplikovaná území, kam se snadno umisťují opakovatelná typová řešení a šablony. Pro všechny ostatní zúčastněné je to ale velká škoda. Obec a její orgány se musí postarat o vybudování nové infrastruktury a její údržbu. Dosavadní obyvatelé přichází o výhled a přístup do krajiny. Obec sama o sobě přichází o svůj kompaktní charakter. Přitom existuje dobrá alternativa. Stavět v centru obcí. To je téma, kterému se jako studio chceme v následujících letech intenzivně věnovat.
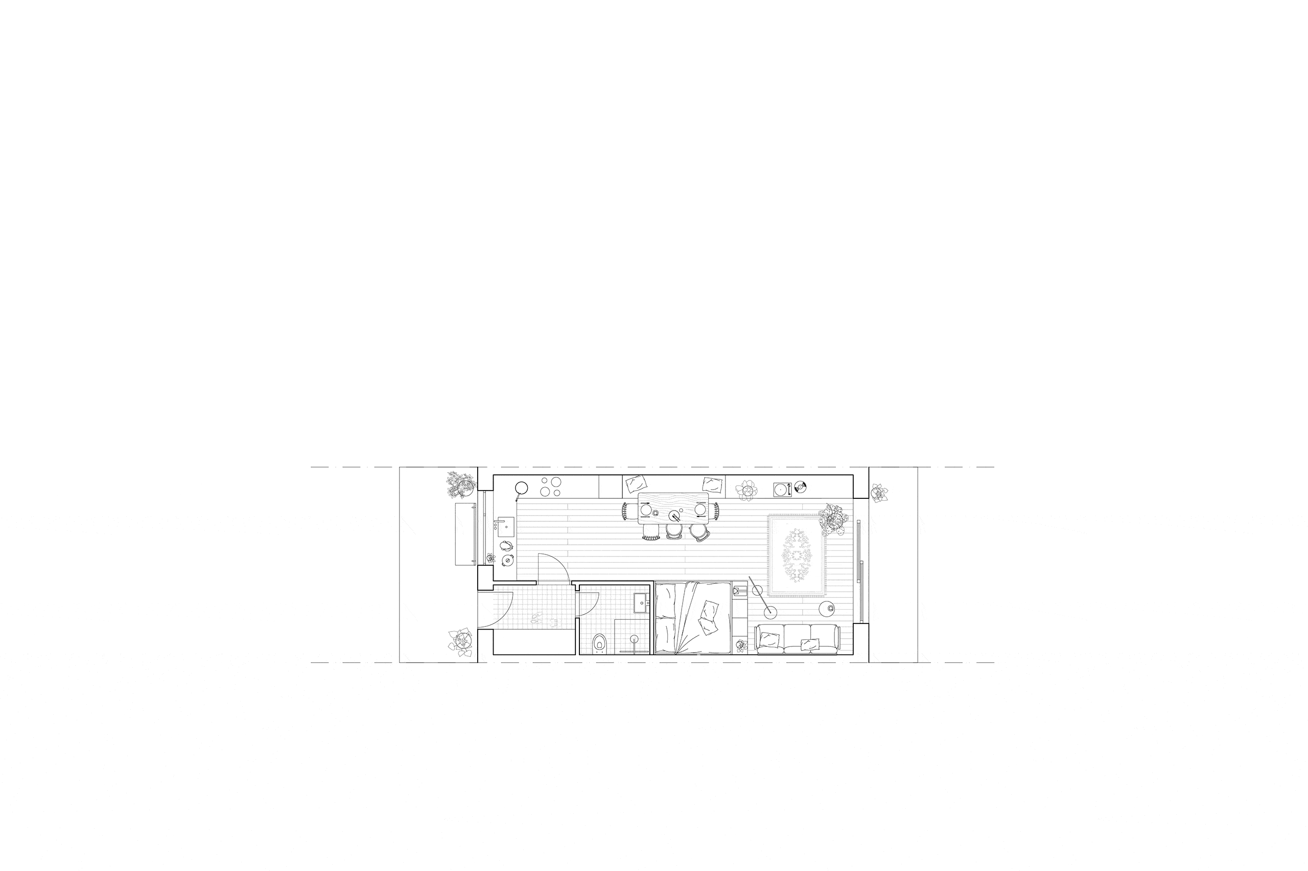
Téměř každá obec v našem regionu má ve své struktuře celou řadu děr a mezírek, které nejenže představují ideální rezervu pro výstavbu, ale také z urbanistického hlediska volají po svém zacelení. Proluky, zbořeniště, parkoviště a brownfieldy jsou často legislativně složitějším místem pro výstavbu. Při navrhování do takových míst je třeba brát v potaz celou řadu limitací, zastínění fasád okolních domů, požárních odstupů, složitých majetkoprávních vztahů ale také hmotového uspořádání a architektonického charakteru místa. Generické řešení zde neobstojí. Řada takových pozemků se přitom běžně nachází ve vlastnictví obcí. Taková místa jsou ta, kterými se chceme zabývat.