Lokace: Bílý Potok
Investor: Soukromý investor
Rok projektu: 2023
Zastavěná plocha: 117 m2
Autor: Filip Cerha, Matyáš Prošek
Generální projektant: Mjölking s.r.o.

Chata pod břízami

Mnohdy se tím jizerským údolím valí mlhy tak těžké, že div nebourají komíny starých chalup. Proto jsou asi všechny střechy tak přikrčené u země. Jedeme vzhůru
údolím Bílého Potoka a pozorujeme, jak staré chalupy podléhají času a z posledních sil oddychují ve své prastaré moudrosti. Občas je to smutný pohled, obzvlášť
když domy nové civí s tupými neforemnými výrazy na tyto staré chalupy. Bez poučení, bez pokory. Na nás čeká jiný úkol. Poslechnout si vyprávění staré bělopotocké
chalupy a navázat na něj příběhem novým.
Jasnou výstrahou pro respektování zdejší krajiny jsou ještě před začátkem práce vyceněné zuby Frýdlantského cimbuří. Budeme pokorní. Máme nádhernou výchozí pozici. Stráň s chalupou je orientována na jih do širokého údolí. Lehce vystupuje k hustému lesu. Přilehá k ní sestupující loučka. Tyto vztahy předurčují umístění domu.

Nasloucháme staré chalupě, ale je nějak potichu. Asi si chce všechna tajemství vzít s sebou. Bohužel už je opravdu v nevyhovujícím stavu, a tak našlapujeme tiše a posloucháme pozorněji.
Hle. Stará žulová studna s dubovým dnem! Musela se celá vyhrabat. První zážeh. Řemeslně opracovaná surová žula je impulz, který do domu určitě dostaneme. Kamna, druhý zážeh. Ty budou hřejivým srdcem celého domu. Nízké podkroví s malými okny přikrčené ve větvích posiluje pocit bezpečí, ale vnáší sem i šibalství. To tam musíme dostat také. Víc se ale nadechneme. Do prvního patra určitě musíme dostat více světla a propojit ho s nádhernou loukou, na které se rosa vesele vpíjí do ponožek.

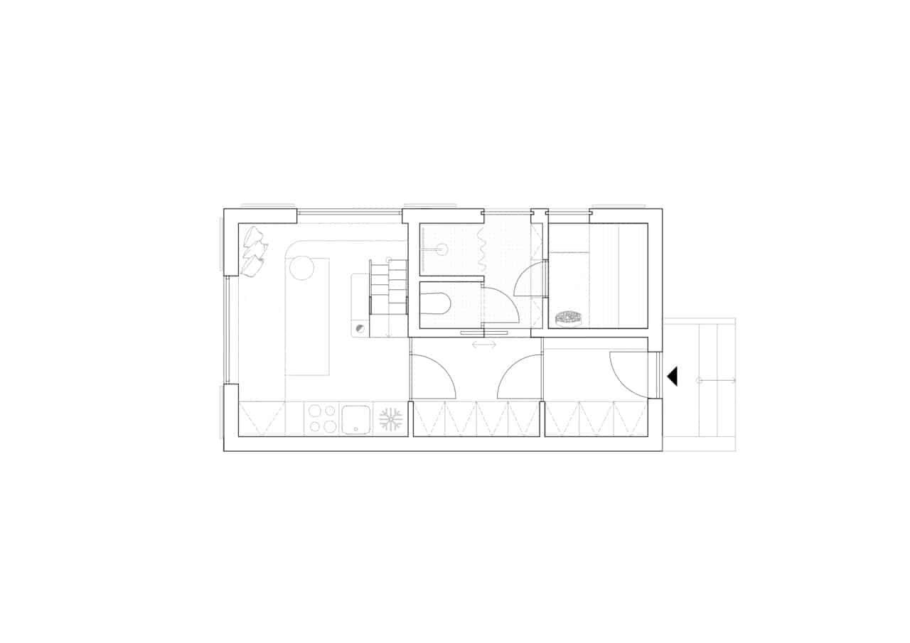
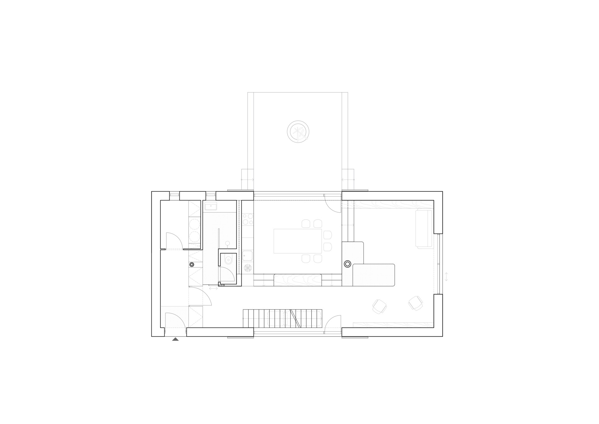
Snažili jsme se dům umístit výhodně k orientaci slunce a vzhledem k povaze pozemku vytvořit specifické atmosféry kolem domu. Dvůr je orientovaný na východ. Jedná se o hlavní přístup a příjezd k domu. Kuchyň se společenskou jídelnou se přiklání k západní straně, plynule vystupují na terasu a rozlévají se do louky. Obývací pokoj směřuje skrz břízy k lesu. Tímto směrem vzniká mezi lesem a domem kryté zákoutí s potenciálem pro šibalství a opékání.
V uspořádání domu pro nás byly důležité dva principy. Nechat louku prokvést skrz dům a zároveň vytvořit útulné a teplé místo, kde kamna jsou srdcem domu. Je možné se na ně rozvalit, v jejich teple sušit houby a mokré ponožky z louky pod domem – vše důležité se děje v bezprostřední blízkosti kolem.
Používáme materiály, které se v místě nachází. Žula je kámen studený, ale my ji opracujeme tak hladce, až bude její dotyk hřát. Dřevo nám přísnost zjemní. Studené zaobalíme do kontrastu teplé.

Pro obě patra je zásadní příčný vizuální prostup skrz dům. Velkými otvory prosvětlujeme první společenské patro. V druhém patře komunikační jádro září skrz skleněnou příčku. Má krásnou vlastnost během dne měnit barvu, a tak je při východu slunce blankytně modrá a při západu žhne rudou barvou.
Přikrčené pokoje zvědavě hledí do všech stran údolí. Lávka vysoko u stropu šibalům napoví umístění ještě jednoho patýrka. Je ale pouze pro odvážné, kteří se nebojí žebříků ve stodolách a toho, co číhá v tmavém koutu za rohem.
Na místo osazujeme ještě druhý objekt. Pomocný malý domeček, schopný samostatného provozu. Lehce zakousnutý a přikrčený v trávě. Lze v něm vařit, přespat, ale hlavně: saunovat se! Stačí pak jenom vyskočit ven a ochladit se ve vaně s výhledem na hustý les.

U louky jsme začali a u lesa končíme. Podobně jako s domem jsme nechtěli vytvářet hmotovou bariéru, ale plynulý prostup krajinou se zastávkou u teplých kamen. Stále však chceme být v přítomnosti borůvčí za domem, srnky dole na louce a Frýdlantského cimbuří na druhé straně údolí. A všechno přímo pozorovat z přikrčeného pohodlí útulného domu.