Lokace: Jiřetín pod Bukovou, ČR
Investor: soukromý investor
Zastavěná plocha: 85,5 m²
Generální projektant: Mjölking s.r.o.
Fotografie: BoysPlayNice

Chata pod Bukovou

Nad Bukovou zase fouká ten zimní vítr, kterej putuje od Severního moře přes německé roviny a nabírá sílu v kamenitých kopcích nad Hejnicemi, aby na
druhé straně Jizerek povídal o tom, jaká bude letos zima. V těhle místech, kam ještě dosáhnou jeho studené prsty severních větrů, jsme opravili chatu.
Nad údolím Horské Kamenice šumí opadaný buky, se kterými si vítr pohrává jako s nějakým pravěkým hudebním nástrojem. Z černýho domu na úpatí kopce stoupá bílej kouř, kterej dává tušit, že chata není prázdná.
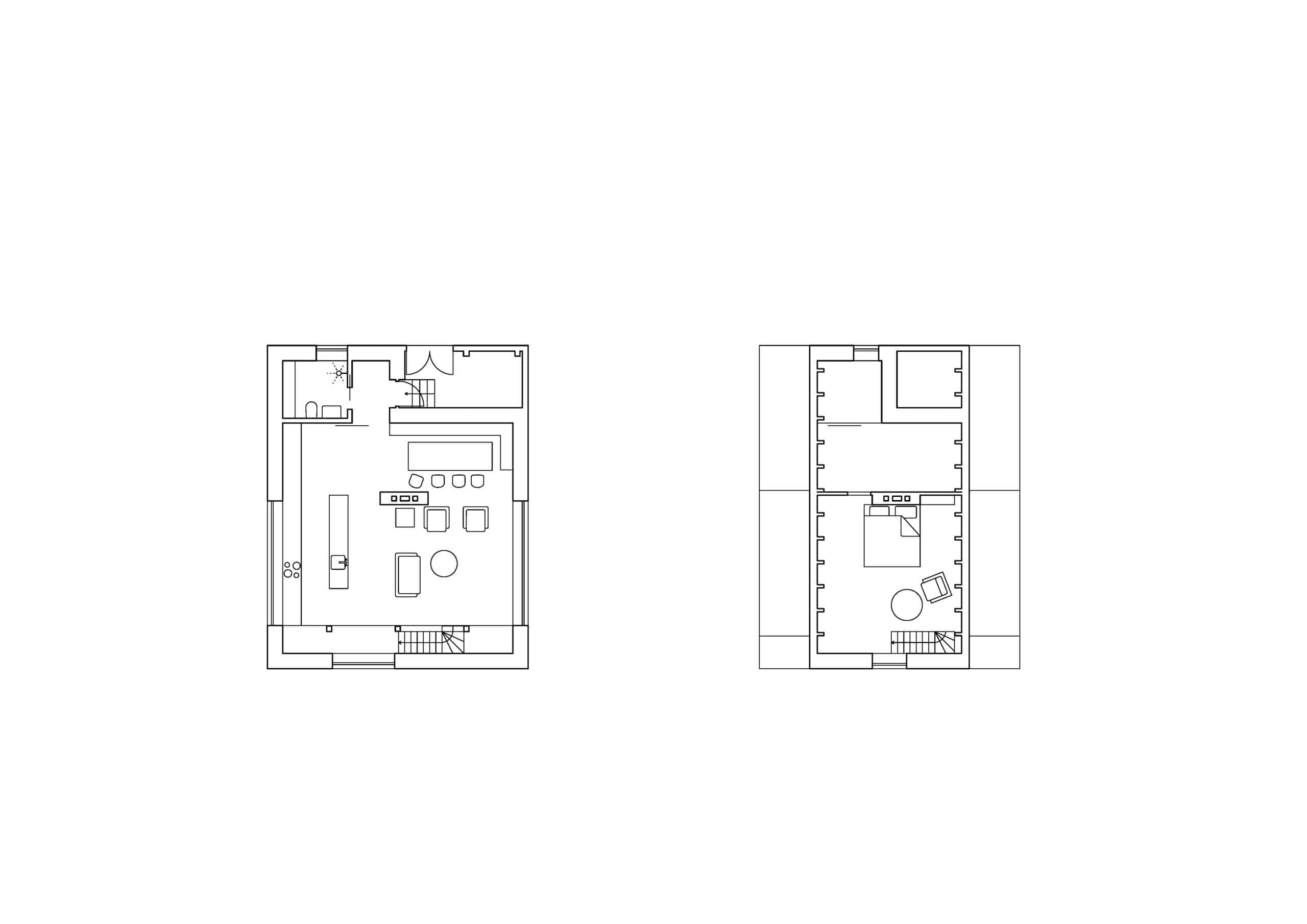
Původní tvář nedostavěné chaty z osmdesátých let se změnila k nepoznání. Šedivý brizolit nahradilo černé dřevěné obložení, které si majitelé sami opalovali. Obklad přechází i na střešní plochy a hlavní dům i s malou chatičkou tak vypadá hodně abstraktně. Termíny jako střecha, zeď, či komín splývají v jediném celku. Stojí tu dům s okny a terasou. Některá z oken ořezává fasádní obložení do kulatého tvaru. Dům vypadá jako přerostlá ptačí budka.

Interiér je jednoduchý a funkční. Původní dispozice doznala změn. Původní obytný prostor zůstal na svém místě, ale změnila se dispozice spaní. Nyní jsou v domě dvě ložnice. Jedna je veliká, přístupná po utajených schodech ve skříni. Druhá, o trošku menší, je přístupná po žebříku z kuchyně.


Naproti krbu je ještě vynález zvaný „spací okno“, kde se pohodlně vyspí nečekaná návštěva.



Pod nohama křupe čerstvej poprašek sněhu a my se dostáváme k menší chatičce, která hostí saunu a ložnici pro návštěvy. V kýblu se máčí březový haluze a sauna voní dřevem. Začíná se smrákat a v šeru jsou vidět první naháči v županech, kteří jdou okusit kouzlo sauny s nejlepším výhledem v Jizerkách.


Máme štěstí na lidi. Společně s našimi klienty realizujeme věci, který jsme dřív jen obdivovali v časopisech. Opravovat starej dům je vždycky odvaha, protože není nikdy úplně jasný, co vás v průběhu prací čeká. Tuhle spadne nějaká zeď, tady se zase zjistí, že dům nemá ani základy, nebo se někde najde pár kostí ze středověku a všechno se musí měnit. O to větší radost máme, když všechno dobře dopadne. Chce to mít jen pevný nervy a partu lidí, který vám věří, že bude všechno dobrý.