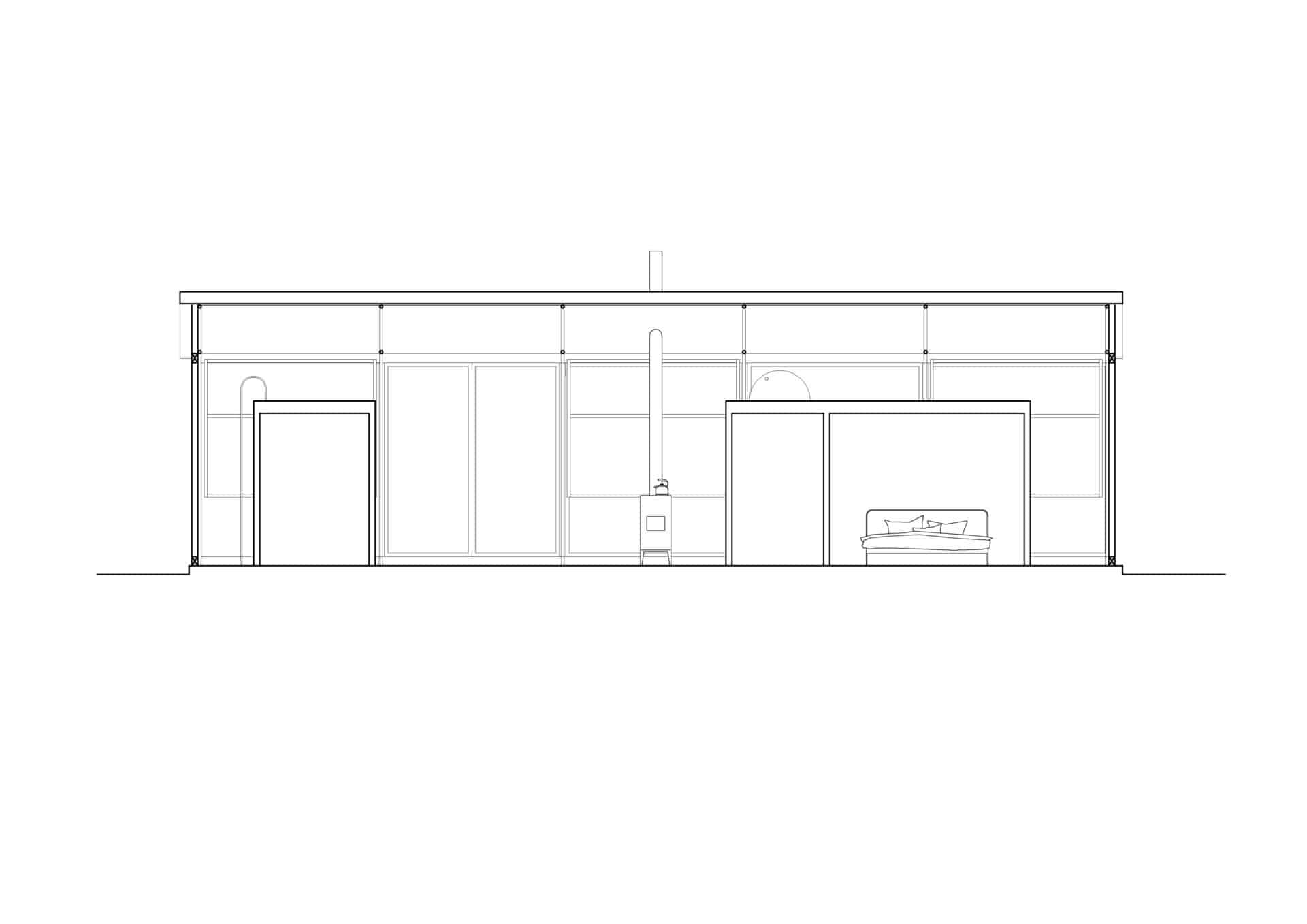
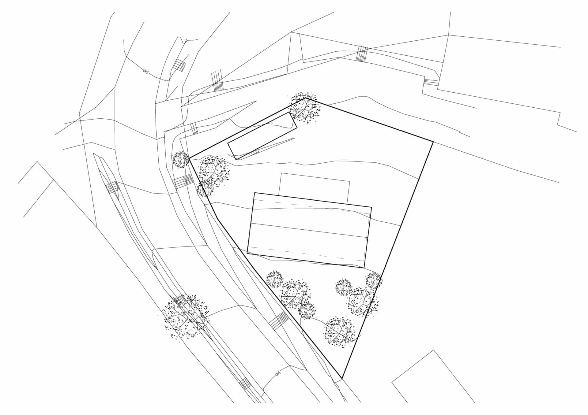
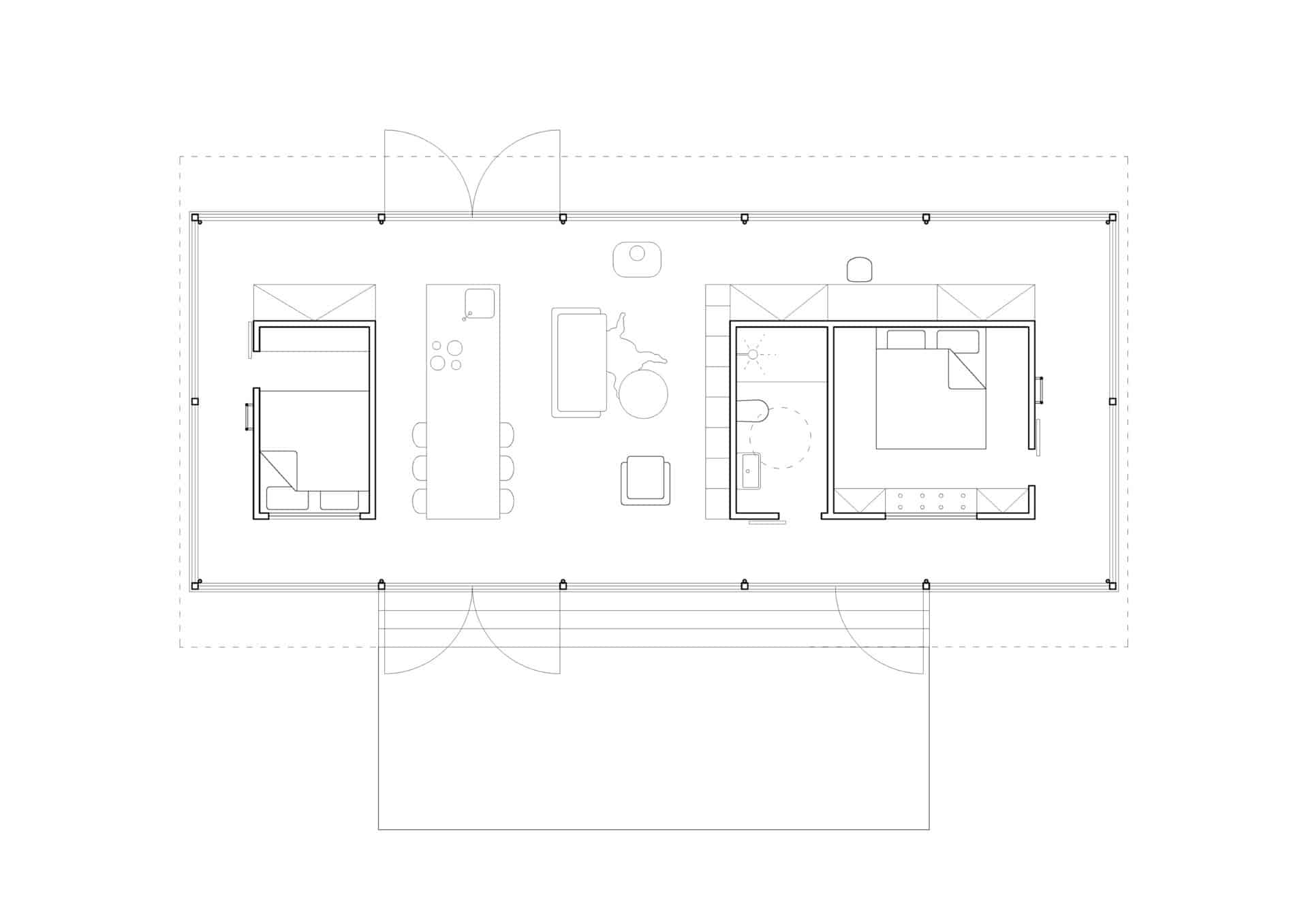
Rána tu bývají nádherná. Kapky rosy se blyští na pavučinách na louce před okny a studená podlaha v kuchyni vítá ospalce ve světnici. V kamnech praská dřevo, na plotně probublává čaj. Dům jsme opravili s myšlenkami na budoucnost, ale zároveň jsme se nechtěli vzdát všech těch krásných, divokých a nepohodlných vlastností, které mu zůstaly z minulosti. Bylo důležité, abychom chalupě nevzali její neviditelné srdce, vůni dřeva a zatuchlý chlad žulových bloků. Zachovali jsme, co jen šlo. To zbylé jsme doplnili novou kvalitou, která se s minulostí nesnaží soutěžit.