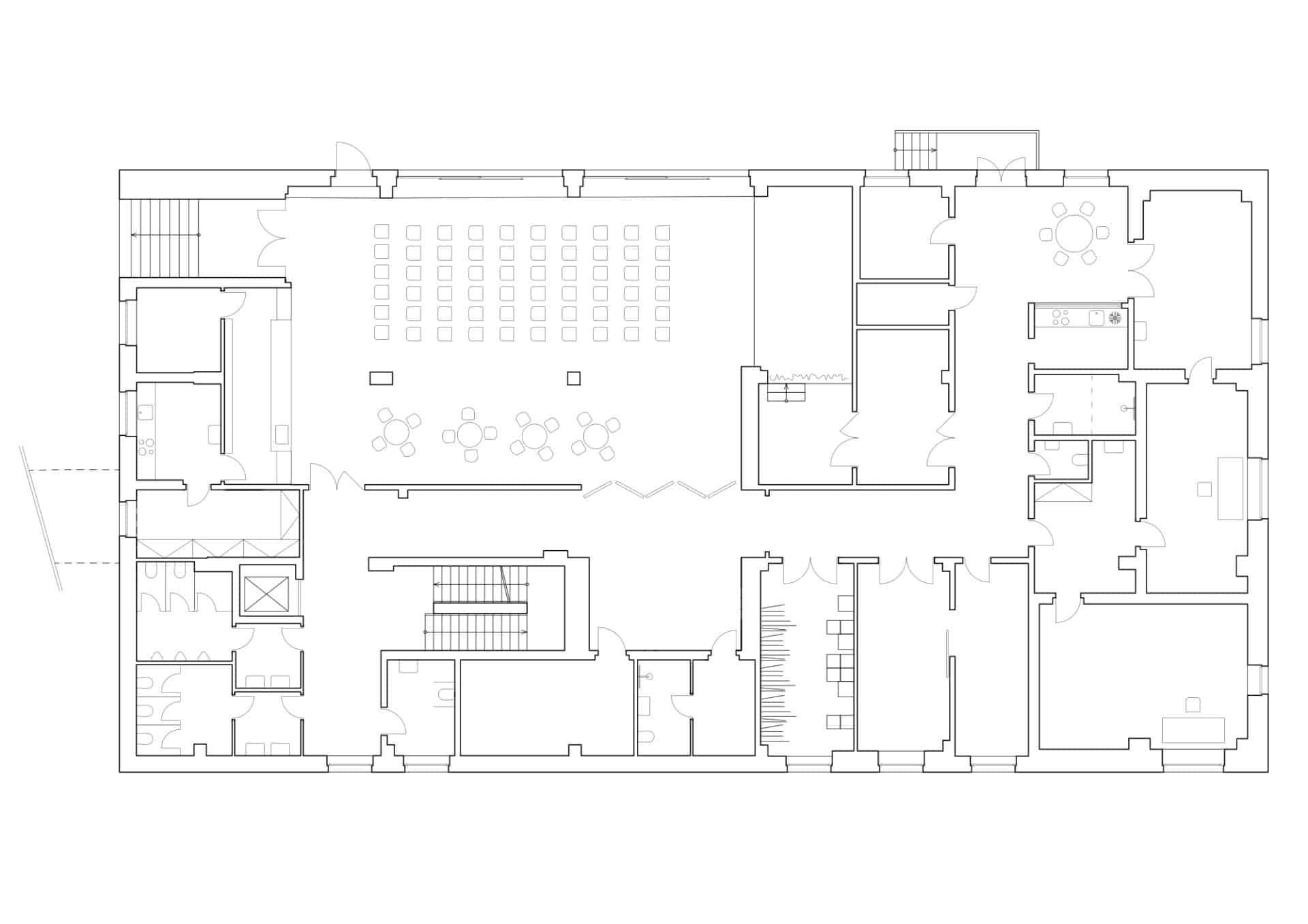
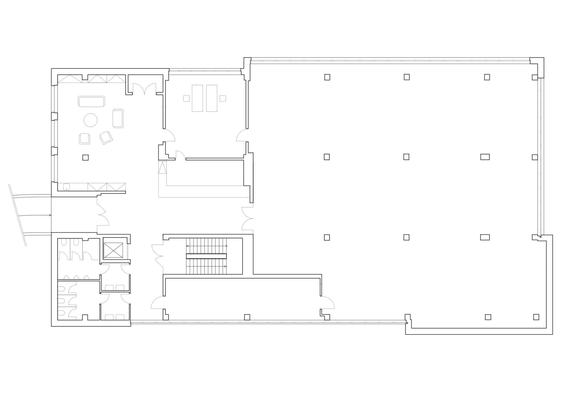
Tam, kde dříve cinkalo nádobí, smrdělo UHO a za výdejními okénky servírovaly upocené kuchařky rozvařená kolínka, se dnes podává jako hlavní chod umění. Děkan Fakulty umění a designu nám nabídl přeměnu někdejší menzy na instituci vznešeného charakteru. Takový architektonický úkol se neobjevuje každý semestr, a tak jsme po projektu chňapli rychleji, než mizí poklopy kanálů v Předlicích.