Lokace: Pardubice, ČR
Investor: soukromý investor
Velikost: 188 m²
Fotografie: BoysPlayNice

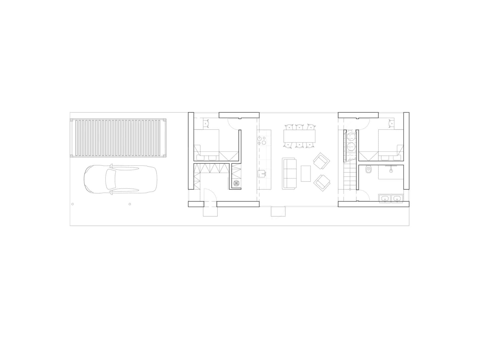
Dům v plotě

Nad Semtínem už se zase povaluje žlutej mrak. Trochu to štípe do nosu, ale není to horší než krájet čerstvou cibuli. Jezdim
domů každej víkend. Naši jsou skvělí. Táta dělá nejlepší snídaně na světě a máma zase bezkonkurenční guláš. Náš malej,
ale sebevědomej dům stojí za dřevěným plotem. Místo garáže máme kontejner, kam dáváme všechno harampádí.

Zahrada pomalu zarůstá a zeleň nás brzy odřízne od posledních zvědavých sousedů. V domě je místa tak akorát. Já i ségra máme pokoj v přízemí. Jsou to spíš cely, ale mají veliká okna a je to z nich blízko na zahradu. Ložnice našich je nahoře. Mají tam klid a hezký výhled. Často k nám chodí návštěvy. Do obýváku spojeného s kuchyní se jich dokáže nacpat docela dost. Mám rád ten pocit, kdy jsme tu všichni pohromadě. Domem prostupuje sladká vůně tátovy špendlíkovice a na sporáku už zase syčí cibulka na guláš. Takhle se žije v Polabí.