Lokace: Brumov-Bylnice, ČR
Investor: Kloboucká lesní a.s.
Rok projektu: 2022
Autor: Filip Cerha, Jan Vondrák
Zastavěná plocha: 475,7 m2

Kloboucká hájovna

Zvuky těžké techniky už jsou nějaký ten pátek utichlé. Valašské kopce nyní jakoby byly oblečené do klobouků upletených z vlny zemitých barev. Hájovna má stále ve stínu nové budovy své
reprezentativní místo. Proto si svůj kabát zachovává. Zkrášluje ho, doplňuje ho a shazuje některé vrstvy, které za ty roky oblékla.
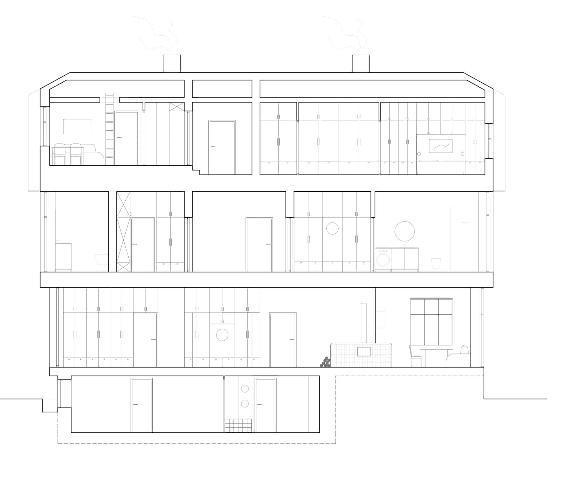
Objekt hájovny bude sloužit jako místo, kde se budou potkávat ubytovaní hosté, zaměstanci i samotné vedení společnosti. Při prvním pohledu zvenčí návštěvník nepocítí výraznou změnu. To důležité je totiž schované uvnitř. Zřetelné propsání nosného systému doposud ukrývaného pod tíhou falešného obložení proniká znovu na denní světlo a ukazuje se ve své plné kráse. Použítí materiálové palety, kterou již známe z vedlejšího objektu tento dojem ještě umocňuje a vytváří tak v návštěvníkovi nečekaný pocit symbiózy mezi těmito, na první pohled diametrálně odlišnými stavbami. Vývoj, kterým si stavění ze dřeva prošlo lze najednou pozorovat z nedaleké vzdálenosti při pohledu na obě stavby současně. Dřevěné konstrukce jsou masivnější, dosahují větších rozměrů a výšek, je to pokrok, který by však bez kloboucké hájovny nebyl.
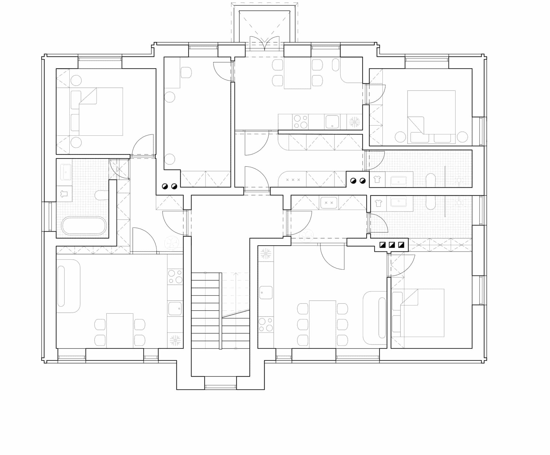
Byt, který se rozprostírá v prvním patře, náleží vedení firmy. Jeho dispozice se otevírá, přeskupuje se a naplno využívá potenciál hájovny. Prostorný apartmán je vybaven ložnicí i hostovským pokojem pro nečekanou návštěvu. Ostrovní sezení a nové propojení s přilehlou zahradou, které dřevenné domy dříve nedokázali pojmout, pocit otevřenosti ještě zesilují.
Podlahy se nyní pyšní sytou zelenou barvou, staré konstrukce se odhalují a nový nábytek v nepřímém spojení s nově vzniklým objektem vzbuzuje pocit klidu.
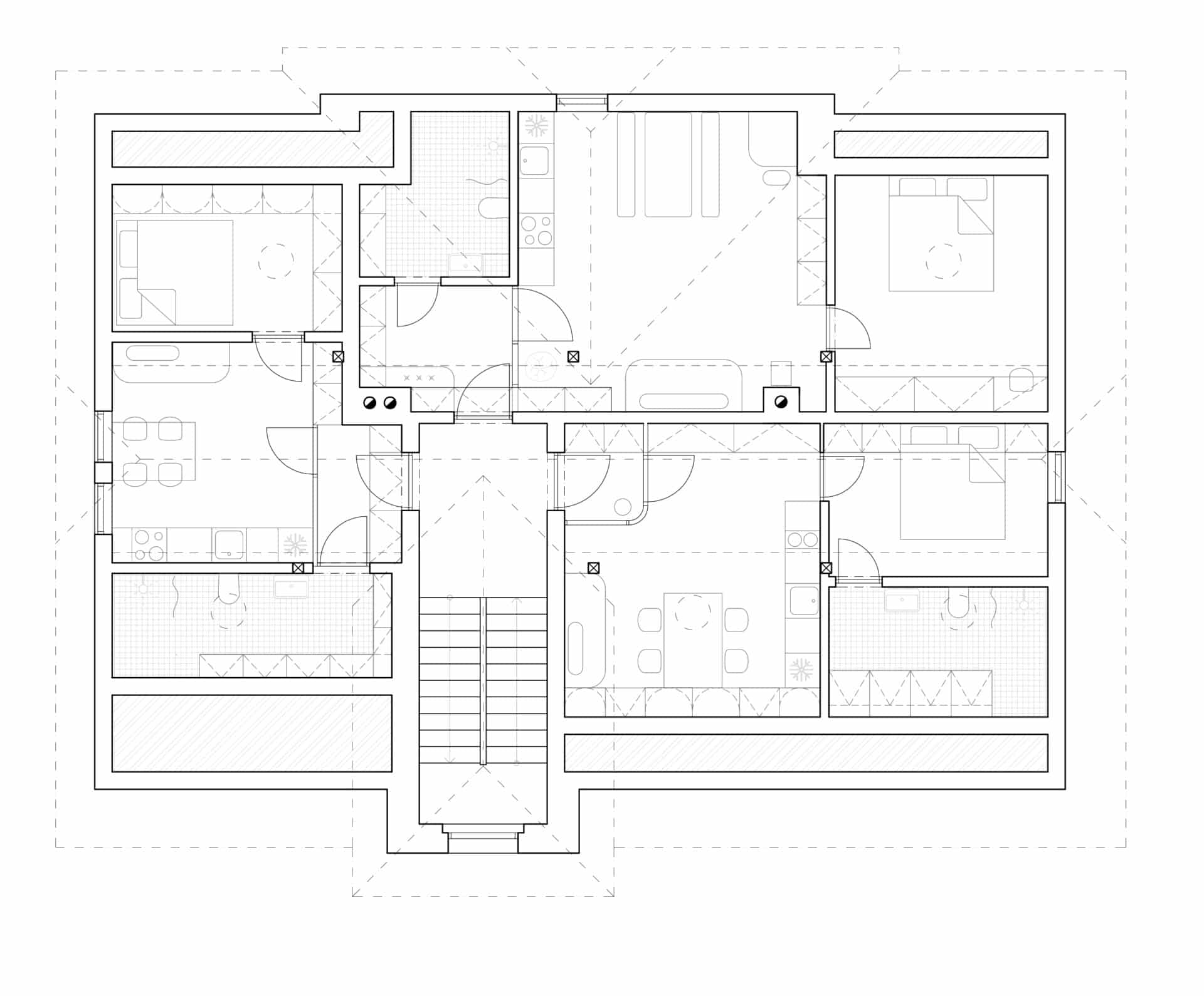
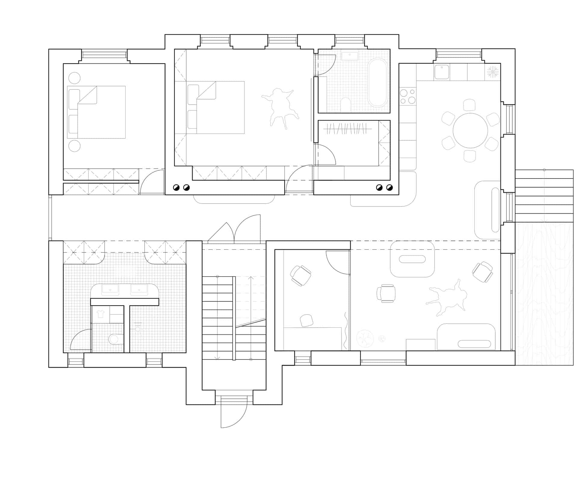
V následujícím patře a podkroví je vybudováno šest malých bytů obahujících to nejnutnější k dlouhodobému I krátkodobému pobytu v Brumově-Bylnici. Svým charakterem však nijak nezaostávají. Naopak podporují přístup celé společnosti ve svém působení. Společné zázemí sauny společně s odpočívací místností a prádelnou tuto symbiózu datahují do sebemenšího detailu.
Samotné členění v objektu je jednoduché a vychází z požadavků na kapacitu ubytovaných osob. Jednou z větších změn, která se projeví při pohledu na exteriér domu, je přesunutí hlavního vstupu do budovy. Ten současný byl vybudován v průběhu života hájovny, nýni se však přesouvá zpět na jižní stranu, kde se do jednotlivcých apartmánů vchází ze schodišťového jádra. Přílepek
vybudovaného vstupu zaniká a místo něj na místě zůstává čístý prosklený otvor, upřimující pozornost do zeleně, ze které vyčnívá trojúhelníkový tvar nevídaných rozměrů, nové sídlo společnosti.
Rekonstruovaná Kloboucká hájovna spolu s novým administrativním sídlem demonstruje posun, který stavění ze dřeva udělalo. Tento pokrok je nezastavitelný, a kdo ví, třeba za pár let budeme opět stát opodál a budeme se koukat na třetí stavbu, která opět překvapí nečekanými rozměry a provedením. Technologie jdou kupředu rychleji než cena půllitru piva v lokálním výčepu. Jsme na začátku revoluce stavebních forem a jen otázkou času, kdy naše proměna hájovny nakazí i další budovy v areálu Kloboucké a my znovu budeme moci ukázat nové postupy, které ještě ani sami neznáme. Co víme jistě je, že budou všechny vycházet ze stejných hodnot a zásad. Vždyť jde o dřevo!