Lokace: Česká Lípa, ČR
Zadavatel soutěže: město Česká Lípa
Umístění: 3. místo
Rok projektu: 2023
Autor: Jan Vondrák, Igor Nesterov

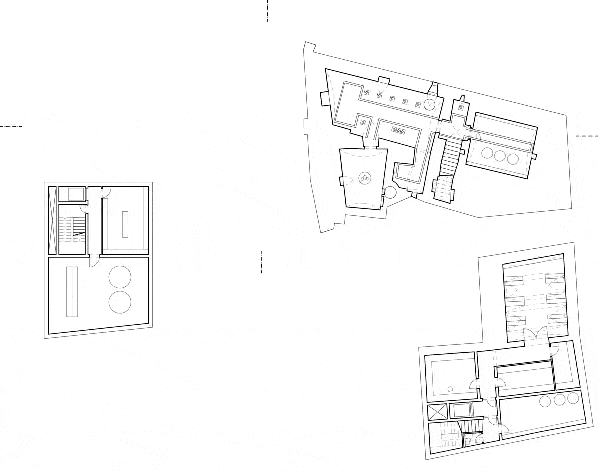
Knihovna Česká Lípa

Veřejná knihovna už zdaleka není jen velkým regálem na skladování knih. Moderní knihovnu vnímáme jako základní kámen a manifest svobodné občanské společnosti a
jejích komunit. Instituci, která vzdělává, ale také spravuje kulturní a vědomostní bohatství společnosti.
Představujeme koncept budovy, která se chová zodpovědně nejen ke svému bezprostřednímu okolí.
Budova navazuje na srostlici několika historických domů. Torzo kleneb a zbytků fasád dominuje parcele, která je v těsné blízkosti historického centra. Rozhodli jsme se tuto
historickou stopu implementovat do návrhu nové knihovny. Na zbytky původní zástavby navazujeme soudobou konstrukcí, která pomůže oživit spící krásu, ukrytou pod
nánosem času.
Nová hmota doplňuje staré domy a uzavírá nedokončený blok zvaný Jeřábkovo náměstí. Starým domům dáváme péči především v místech, kde je ještě co zachraňovat. Hodnotné klenby i sklepní prostory jsou součástí funkční dispozice knihovny. Fasády, které se staly obětí necitlivých zásahů nevracíme do původního stavu. Fasádu sjednocují hrubé, strukturované omítky, kontrastující s exaktní moderní přístavbou. Cenná historická fasáda domu č. 158/2 je součástí budoucího administrativního bloku knihovny. Stavba využívá stávajících sklepních prostor a začleňuje je do programu. V nové přístavbě budujeme nové prostory pro technické zařízení budovy.

Hlavní vstup do knihovny navazuje na veřejný prostor před Bazilikou Všech svatých. Alternativní vstup do budovy je situován z piazzetty uvnitř bloku, který je původním průchodem propojen se Škroupovým náměstím.

V přízemních prostorách budovy je foyer s recepcí a několika místy na sezení, která slouží jako malý pracovní HUB. Vstupní podlaží chápeme jako multifunkční provoz, umožňující široké spektrum využití.

Na foyer navazuje dělitelný multifunkční sál, s výstupem na piazzettu. Toto řešení umožňuje provoz sálu, bez konfliktu s otevírací dobou knihovny. Se vstupní halou sousedí malá kavárna a dílny, oba prostory jsou plně oddělitelné od hlavního provozu.
Zpevněná plocha nádvoří je místem mnoha funkcí. Nabízí klid na posezení, rozšiřuje letní provoz kavárny, je drobnou venkovní scénou pro malé hudební produkce, či autorská čtení.
Do patra se stoupá hlavním schodištěm, které společně s blokem dalších funkcí vytváří hlavní prostorovou dominantu ve foyer. Systém polic obaluje komunikační jádro a prostupuje do druhého patra, kde prorůstá podstřešním prostorem.

Podkroví knihovny dominuje nosná konstrukce krovu a živý policový systém. Světlo prostupující střešními světlíky padá do interiéru jako vodopád. Socha knihovních polic člení prostor na jednotlivá funkční zákoutí. Intimní prostory určené pro četbu či studium se střídají s místy setkávání, či dětské hry. Všechny prostory jsou navrženy tak, aby odpovídaly požadovanému programu i současným vysokým požadavkům na kvalitu a pestrost, jakou by moderní stavba typu veřejné knihovny měla disponovat. Každý si tu najde svoje místo.

Materiálové řešení klade velký důraz na ekologické pojetí celkového konceptu. Knihovna je navržena z kombinace CLT panelů a BSH nosníků. Dřevěnou konstrukci doplňují betonová komunikační jádra, která se společně se spřaženou, dřevo-betonovou konstrukcí stropů podílejí i na celkové statice objektu.
Nosnou konstrukci doplní tepelná izolace z odpadní biomasy chráněná fasádou z desek na bázi plastového recyklátu.
O zastínění objektu se starají translucentní fasádní panely, které do interiéru distribuují difuzní světlo.
Ani venkovnímu prostoru se nevyhnula snaha o uplatnění recyklovaných materiálů. Vybavení kombinuje přenosný mobiliář a vestavěné lavice z plastového recyklátu s příměsí betonu.

Předprostor knihovny v blízkosti Baziliky Všech svatých je místem setkávání. Nesnaží se konkurovat ostatním náměstím, kterých má Česká Lípa dost. Chceme nabídnout alternativu. Velký komunitní stůl slouží nejen pro běžnou veřejnost, ale i pro letní výuku dětí, či drobné venkovní workshopy navazující na program knihovny.