Lokace: Brumov-Bylnice, ČR
Investor: Kloboucká lesní a.s.
Rok projektu: 2019
Rok dokončení: 2022
Zastavěná plocha: 475,7 m2
Generální projektant: Pavel Srba
Zahradní architektura: Partero
Fotografie: BoysPlayNice

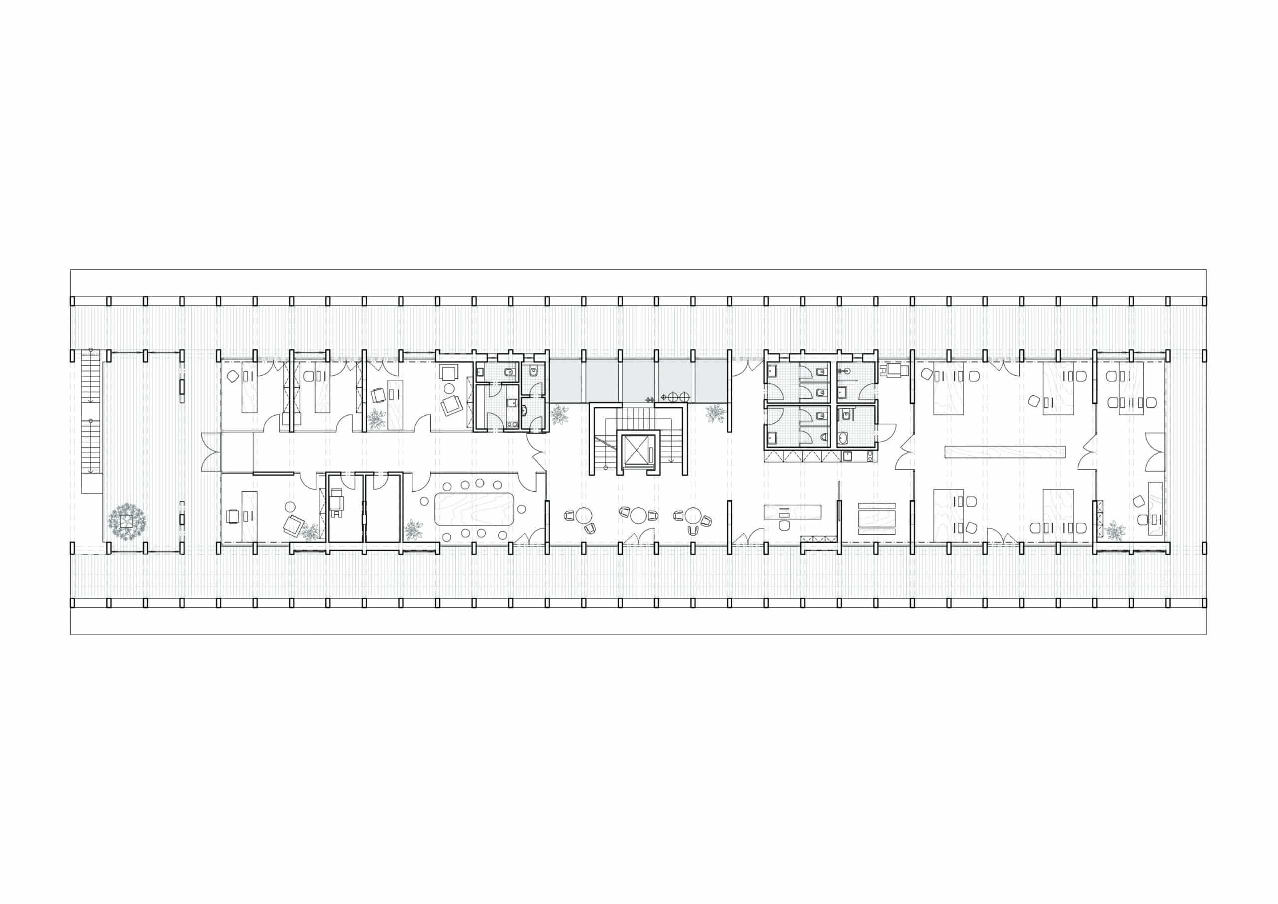
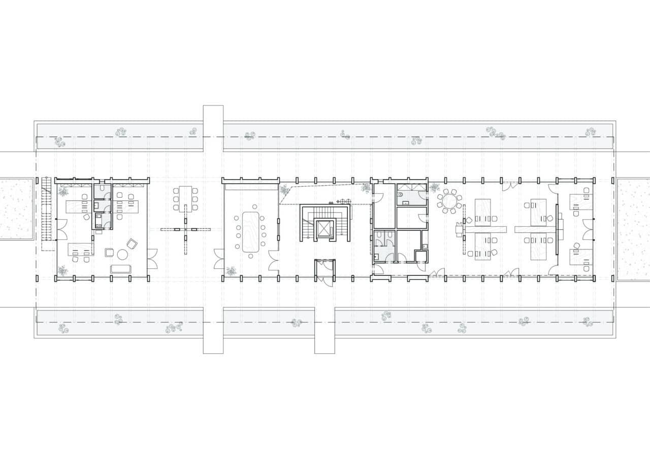
Sídlo Kloboucké lesní

Nové sídlo Kloboucké Lesní představuje na tisíci metrech základní ideály udržitelného stavebnictví. Stavba poukazuje na aktuální témata a potenciály ekologické výstavby a upozorňuje
na možnosti a výzvy, které nás v budoucnosti čekají.
Společnost Kloboucká lesní je firmou, která vytrvale prošlapává cestu k udržitelnému hospodaření s lesem a krajinou. Inspiruje se odkazem našich předků a zároveň zkouší stále nové technologie i možnosti. V oboru, se kterým obvykle není spojována inovativnost a odvaha, se firma profiluje jako pokroková a kreativní. Sídlo společnosti má tyto idee reprezentovat. Kloboucká lesní se svými aktivitami snaží ukázat potenciál udržitelného stavění v souladu s ekologickým myšlením a nejmodernějšími technologiemi.
Odvětví, v němž firma působí, prochází dramatickou změnou vlivem posunu přírodních podmínek. Sídlo firmy tedy musí být pružně upravitelným prostorem umožňujícím vývoj a změnu. Vytváříme prostory pro tvůrčí práci, výzkum a inovaci. Dům je navržen jako schránka tvořená konstrukcí, prostory uvnitř jsou přestavitelné a jsou zde vytvořeny rezervy pro nečekaný rozvoj.
Stavba je navržena tak, aby udávala směr stavění budoucnosti. Ekologie, jednoduchost a střídmost v kombinaci s nejmodernějšími technologiemi – to vše vsazeno do prostředí přírodních prvků, zeleně a vody. Konstrukce je vyrobena výhradně z materiálu, který vzniká přímo na místě – na lince Kloboucké lesní, necelých 100 metrů od místa stavby. Je to nejprostší a nejstarší stavební materiál – dřevo. Způsob zpracování dřeva je však ryze současný. Použity jsou profily BSH – vlajková loď produktů společnosti. Z tohoto materiálu je složena rámová konstrukce tradičního tvaru, která se mnohokrát zopakuje a vytvoří dlouhou elegantní hmotu celé stavby.

V urbanismu fabriky je pro sídlo zvoleno exponované místo. Severní fasáda objektu je otočena k obci a přijíždějícím návštěvníkům. Stavba svou hmotou zakrývá průmyslové stavby areálu a její pozadí v druhém plánu tvoří krásná scenérie Pláňavského hřebene.

Technologie
Vnitřní technologie domu kombinují moderní technická řešení a selský rozum.
Základní konstrukce domu je kombinací těžkého dřevěného skeletu, betonového jádra a ocelových ztužení. Jednotlivé moduly vyplňuje několik typů fasádních panelů, které jsou umístěny dle logiky vnitřní dispozice. Modulární konstrukce domu poskytuje velkou variabilitu použití i v případě budoucí potřeby změny využívání.

Hlavní část dřevěné konstrukce tvoří lepené BSH profily, vyrobené pouze několik desítek metrů od stavby. Většina dřeva použitého na stavbu je z nedalekých lesů, převážně se jedná o beskydský smrk. Při výběru stavebního dřeva se kladl důraz na jeho kresbu i hustotu vláken a podle toho se také vybíral les, kde probíhala těžba.

Střecha domu je pokryta solárními panely, které uspokojí energetickou spotřebu domu a zároveň zastupují funkci střešní krytiny. V současné době pracuje většina zařízení v areálu na energii ze slunce. Severní stranu střechy pokrývají skleněné panely, které prosvětlují podstřešní prostory. Voda ze střešních ploch je odváděna do nadzemních nádrží, které v letních měsících přirozeně ochlazují budovu a akumulují vodu pro zpětné použití v areálu. Vodní plocha je také způsobem, jak odrážet rozptýlené světlo i do hlubších částí dispozice.

Zdrojem pro vytápění stavby a celého areálu je centrální areálová kotelna, kde hlavní palivovou surovinou je štěpka vlastní produkce. Tímto je areál zcela nezávislý na jiném palivovém zdroji. Přidanou hodnotou je, že se jedná o zcela ekologický zdroj.

Ekologie
Téma ekologie díky dotační politice a přijímaným normám stavební profesí rezonuje. Jen malá část stavebníků se však o ekologii zajímá doopravdy a neřeší ji pouze z ekonomického, či legislativního pohledu. Výrobci stavebních materiálů se předhání, čí stavební materiál je nejčistější, jaký výrobní proces je nejšetrnější k přírodě, ale především který materiál, či výrobek vám ušetří co nejvíc peněz. Stavební normy jsou nastaveny tak, že už prakticky nesmíme postavit dům bez izolace, protože není „ekologický“. A tak se všechno obaluje. Pod nánosem izolačních vrstev mizí nejen novostavby, ale také krásné staré domy. Státní podpora sice pomáhá stavebnímu byznysu, ale celkově spíše škodí.

Ekologické stavění, je mnohem komplexnější, než se zdá. Když stavíme, nezáleží na tom, jestli máme dům obtažený polystyrenem, nebo ne. To, co dělá domy ekologickými, nejsou normy na zateplení, ale to, jak domy umíme používat nebo, kde je postavíme. Důležité je uvědomit si, že tématem není jen přímá energetická spotřeba stavby, ale celá množina úkonů a energetických vstupů, které vznikají při výrobě jednotlivých komponent domu a jejich cestě na stavbu, ale také správné používání stavby a v neposlední řadě i přemýšlení o tom, co nastane, až bude životnost projektu u svého konce. Takové přemýšlení je Kloboucké lesní blízké.

Mít kontrolu nad celým procesem, zajistit kvalitu a mít zodpovědnost v každé jednotlivé produkční fázi, pohlížet na věci nejen z hlediska rentability, ale především udržitelnosti. Tady nejde jen o prodej a zpracování dřeva, jedná se o komplexní činnost, která se dá pojmenovat péčí o les. Na jejím začátku je semínko a na konci dům. Jednotlivé části systému se nedají oddělit, jedno bez druhého nemůže existovat. Životnost budovy je projektována s přesahem na minimálně tři generace.



Vize
Představte si svět, kde materiály na stavbu vašeho domu necestují přes půl světa. Kde znáte les, kde se pokácely stromy, ze kterých máte postavený dům. Sídlo Kloboucké lesní není jen administrativní zázemí progresivní firmy, je to laboratoř. Zkoumá, jak by se daly stavět domy rychleji, jak pracovat s energií i materiály tak, abychom nezatěžovali přírodu při jejich výrobě, v průběhu jejich životnosti, ale i při likvidaci na konci jejich životního cyklu. Ani kapka vody nepřijde nazmar, ani joul energie se nepropálí jen tak a každá zkušenost se využije pro další vývoj.



V České republice vyroste za rok dva tisíce dřevostaveb, což odpovídá zhruba půlprocentnímu podílu na celkové produkci dřeva v ČR. Naší snahou je, abychom toto mizivé množství znásobili, abychom dokázali chytře využít potenciálu, který se nám sám nabízí a dokázali stavět domy, které nebudou ekologické jen z hlediska úspory na vytápění. Chceme se na proces výstavby ze dřeva podívat z větší dálky, pochopit principy a spojitosti, a pod touto novou optikou ho znovu složit dohromady. Pro Klobouckou lesní je poznání postupů, které navazují na samotné zpracování dřeva, zásadní pro další vývoj firmy. Současný rozsah produkce firmy je zakořeněn ve sloganu, který popisuje práci se dřevem jako proces od zasazení semínka až po výsledný produkt, hoblované prkno.


Díky zkušenostem nabytým v laboratoři se chceme společně dívat dál. Filosofie udržitelnosti, hospodárnosti i společenské odpovědnosti nám ukazuje další možnosti a potenciály rozvoje. V době, kdy je stavební průmysl zablokován byrokracií, nedostatkem materiálů i lidí je ta správná chvíle začít znovu. Ekologicky, efektivně a ekonomicky. Pojďme zúročit nabyté zkušenosti a stavět takové domy!




P.S.: Děkujeme nejen Vojtovi Dorňákovi a Kloboucké lesní za bezmeznou důvěru, jakou nám v projektu dali, ale i BoysPlayNice, kteří v začátku sehráli neméně důležitou roli seznamovacích mediátorů. Máme obrovskou radost, že tohle spojení vyšlo a vznikl progresivní dům, který daleko přesahuje hranice Valašska. Těšíme se na další takové projekty!