Lokace: Liberec, ČR
Investor: Soukromý
Rok projektu: 2023
Zastavěná plocha: 780 m2
Autor: Jan Mach, Jan Vondrák, Igor Nesterov, Daniela Marešová
Generální projektant: Mjölking s.r.o.

Škola Doctrina Jabloňová

V dnešní době se často potýkáme s nedostatkem míst ve školkách. Jednou z možností jak situaci efektivně a udržitelně vyřešit, je postupně lépe využít nevyhovující stávající budovu. Když se k tomu přidá nadšený soukromý investor, může školka vzniknout během pár měsíců a jen s malými přístavbami se najde místo i pro pět tříd základní školy. A to i přes zadání, které kombinovalo omezený rozpočet s důrazem na rychlost a efektivnost výstavby. Dalším limitem jsou komplikované české normy. Přes to přese všechno jsme si kladli za cíl vytvořit zábavné a kvalitní místo pro děti, na které budou rády vzpomínat. Školka a škola jsou totiž naším prvním kontaktem se světem mimo náš domov. Místem, které nás formuje a kde si stavíme základy našeho života. Prostředí škol je proto podle nás extrémně důležité.
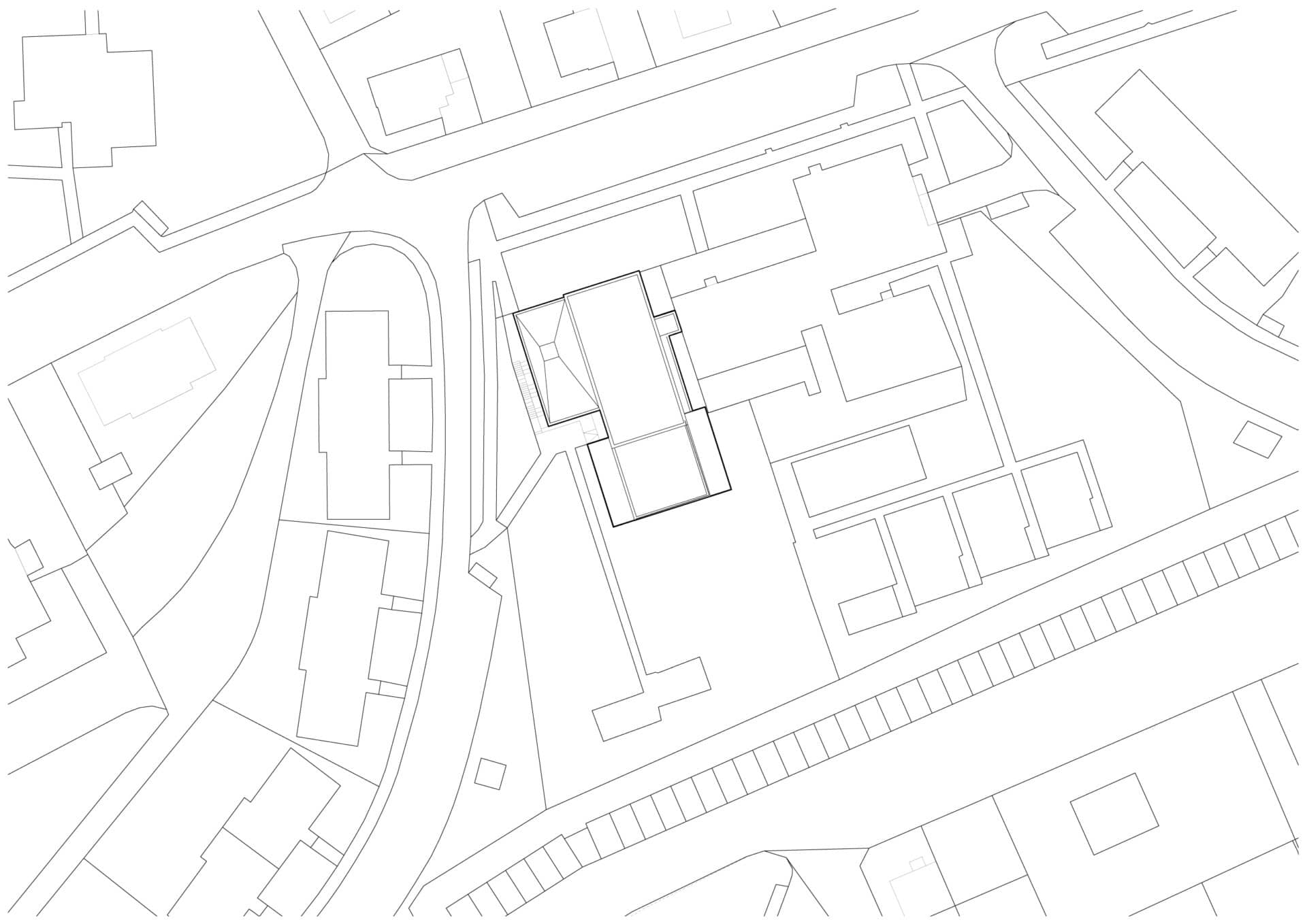
Stávající školce v Liberci v Jabloňové ulici, postavené za komunismu v akci Z, vdechneme nový život. Dvoupodlažní stavba projde rekonstrukcí a konverzí na školku a školu prvního stupně. K návrhu přistupujeme tak, abychom co nejefektivněji využili stávající budovu a postupnými dostavbami ji doplnili o nové architektonické objemy, které umožní nejen navýšení kapacity, ale i zlepšení kvality výuky. Zároveň chceme dětem nabídnout nový standart vnitřních i venkovních prostor tak, aby byly neformální a příjemně hravé.

Budova je členěna na dvě patra. Svažitý terén umožňuje oddělené vstupy do každého podlaží. Ve spodním podlaží vznikne školka s dvěma hernami, které jsou přímo napojené na zahradu. Škola s pěti kmenovými třídami a dvěma jazykovými třídami se bude nacházet v přízemí, zaujímá celou plochu stavby. Jednotlivá podlaží jsou provozně spojena vnitřním schodištěm. Venkovní propojení pater poskytuje terénní a pobytové schodiště mezi hlavními vstupy. Vzniká tak prostor, kde se děti ze školy i školky mohou potkávat.

K finální podobě stavby dojde postupně během tří etap. Všechny dostavované objekty jsou v souladu s naším přístupem k udržitelnosti stavění navrženy jako modulární dřevostavby, a tak, aby doplňovaly původní zděnou budovu.
Etapa I.
V 1PP stávajícího objektu přistavujeme po stranách dvě křídla, která zde umožní realizovat dvě dětské herny. Přístavby jsou jednoduché objemy, dřevostavby s prosklenými fasádami, které se otevírají do okolní zahrady. Střechy přístaveb jsou ozeleněné, aby v budoucnu vytvářely příjemné prostředí pro výhled z učeben školy.
Etapa II.
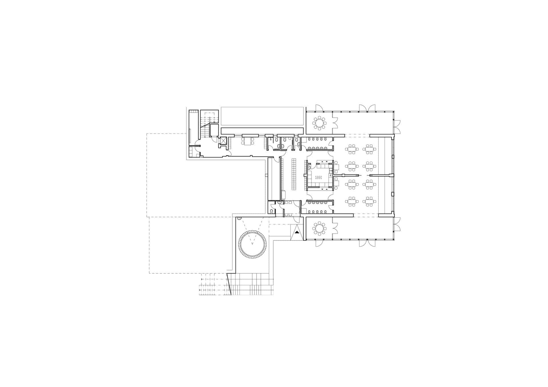
Druhou etapou bude dostavba vstupního objektu. Žáci budou zaplňovat kapacity základní školy postupně, nejprve se otevře jeden ročník. S každým dalším žákem se bude zvyšovat potřeba prostoru a vstupního objektu. V našem podání se jedná se o architektonicky výrazný objem, který má svou hravou formou označit vstup do základní školy na úrovni 1 NP. Objekt bude obsahovat převýšenou vstupní halu se světlíkem, šatny žáků a nové učebny. Konzola dostavby poskytne zastřešení venkovní třídy u vstupu do školky, kterou budou moci využívat jak žáci školy, tak i děti ze školky.

Etapa III.
Poslední fází je dostavba nových tříd nad stávající školkou a poslední úpravy vnitřních dispozic. Forma budovy nabyde svého finálního tvaru a vznikne tak plně funkční budova se školkou a základní školou.
Školka a škola Jabloňová je pro nás budova hravá zvenku i zevnitř. Budova tvořící jeden celek, poskytující propojení interiéru a exteriéru díky velkým skleněným plochám. Samozřejmostí jsou příjemné světlé barvy v interiéru. Důležitý je i venkovní prostor, kde dochází ke kontaktu žáků školy i školky.
Škola vítá příchozí prostorem s otevřeným stropem s velkým světlíkem. Středobodem dění je jídelna, kde děti kromě obědvání mohou společně trávit volný čas. Zelená střecha zpříjemní výhled z učeben. Školka je příkladem dobře využitého prostoru pro více aktivit. Prosklené herny se otevírají do zahrady a dají se propojit. Díky efektivně využitému úložnému prostoru jsou nejen hernami, ale také ložnicí a jídelnou.