Lokace: Osečná, ČR
Investor: soukromý investor
Rok projektu: 2022
Zastavěná plocha: 214,2 m2
Autor: Igor Nesterov, Jan Vondrák

Mlýn Thum

Když se začteme do literatury, najdeme první zmínku o Jenišovském mlýnu z roku 1631. Mlynář Kryštof Thum nechal shromáždit obyvatele Osečné, aby zabránil odvozu desátkového obilí dubským děkanem. Tahle rebelie ho tehdy poslala do šatlavy. Mlýn změnil majitele a do rukou rodiny Thumových se dostal zpět až prostřednictvím Kryštofova syna, Kryštofa Thuma mladšího. Rod Thumů poté hospodařil na mlýně několik generací, po nich se o mlýn staralo několik dalších majitelů. V devatenáctém století byl mlýn přepaden a tehdejší majitele Reischelovy lupiči zavraždili. Tuto událost připomíná křížek nedaleko mlýna. Od té doby začal mlýn upadat, až se nakonec v padesátých letech dvacátého století lopatky mlýnského kola definitivně zastavily. Pak už mlýn sloužil povětšinou k rekreačním účelům a chátral.
Když se nám ozval potomek Kryštofa Thuma, prvního doloženého majitele mlýna s žádostí mlýn zrekonstruovat, nadchlo nás to. Myšlenky na velkorysou záchranu mlýna však vzaly rychle za své. Technický stav historické stavby je bohužel katastrofální. Záchrana historického mlýna by znamenala jeho zbourání a opětovné postavení. Vzhledem k požadavkům klienta na uspořádání domu by také implementace stavebního programu nebyla jednoduchá, a tak jsme se rozhodli navrhnout pro klienta úplně nový dům. S respektem k rodině, která před čtyřmi stoletími mlýn zbudovala i k okolní krajině, tedy romantickému prameništi řeky Ploučnice.
Nový dům hmotově i materiálově respektuje objem původního mlýna. Moderní dřevěná konstrukce z CLT panelů sice ztratí svou původní funkci, ale duch místa a občasné šumění náhonu by měly v Jenišovském mlýně zůstat.
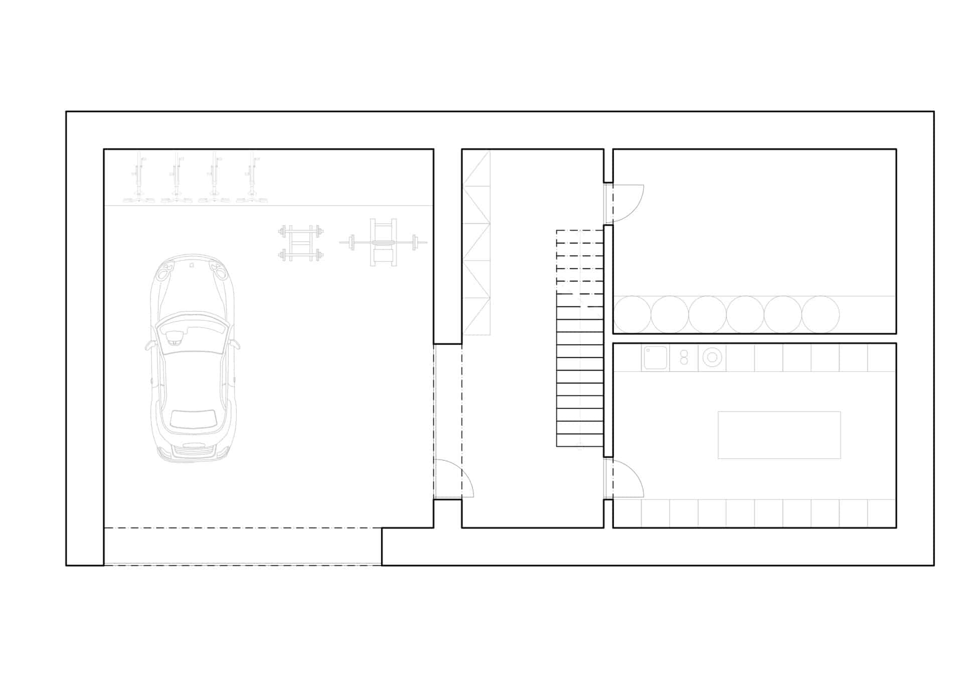
Ve sklepech, kudy dříve procházela hřídel mlýnského kola, je technické zázemí a garáž. Milované vozy tam najdou svoje místo společně se všemi nezbytnými technologiemi, které se starají o hladký chod domu.

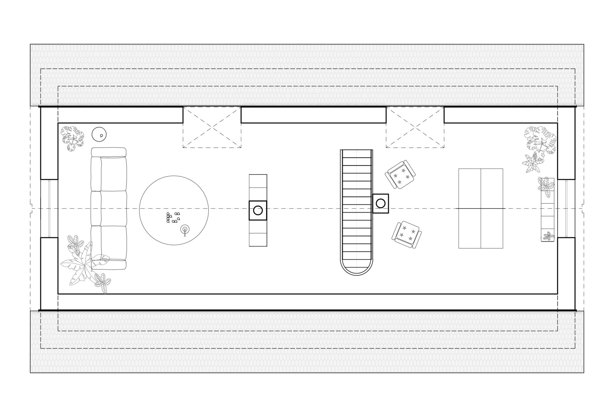
O poschodí výš je patro obytné a hlavní vstup do domu. Na tomto podlaží se do interiéru propisuje odhalená dřevěná konstrukce. Textury přírodního dřeva a betonu dokreslují vnitřní atmosféru víkendového domu.
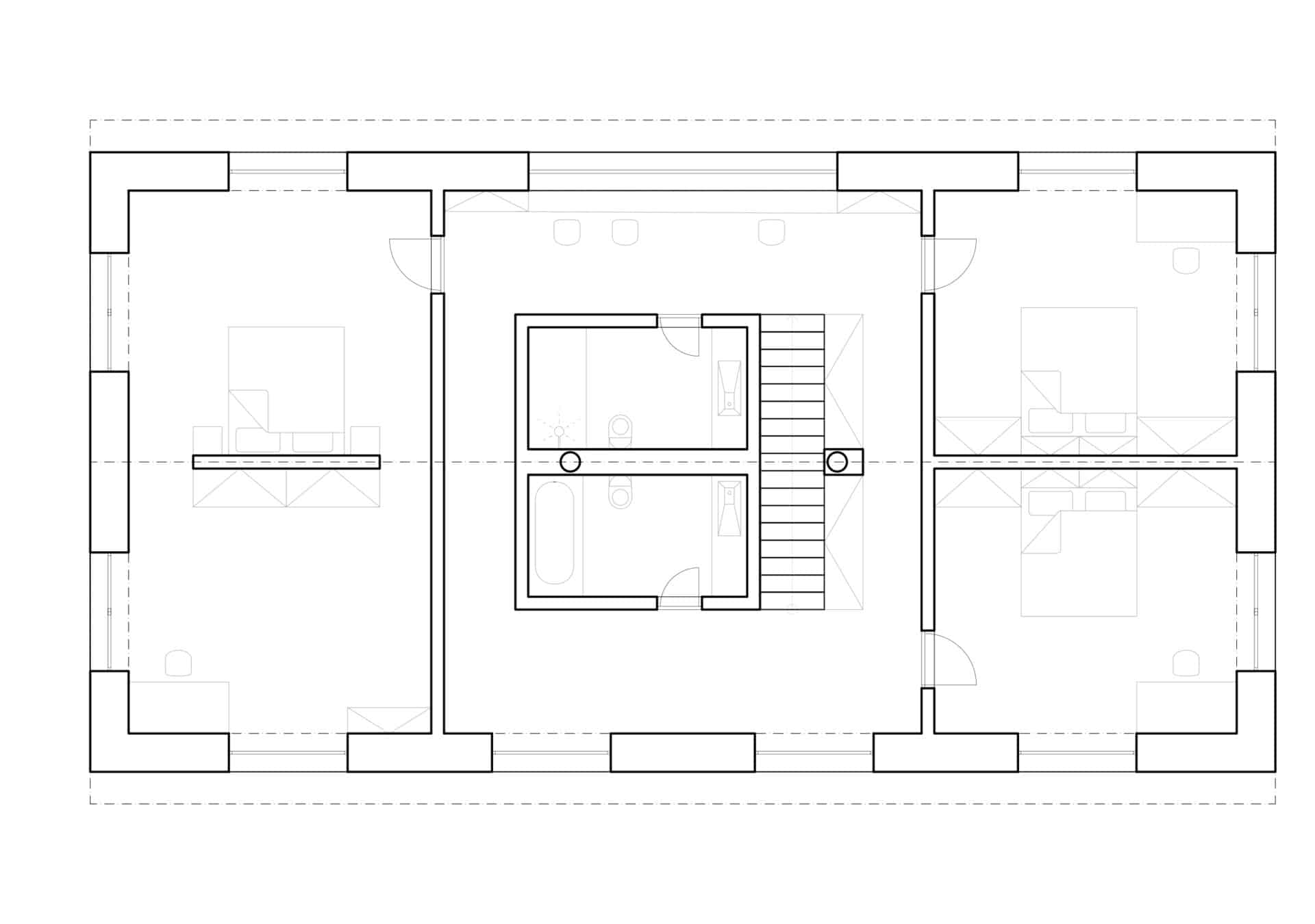
O další patro výš jsou situovány velkorysé ložnice pro majitele domu a jeho potomstvo.
V krovu pod střechou je prostor zamýšlený jako herna, pracovna, či nouzové přespání pro návštěvy.
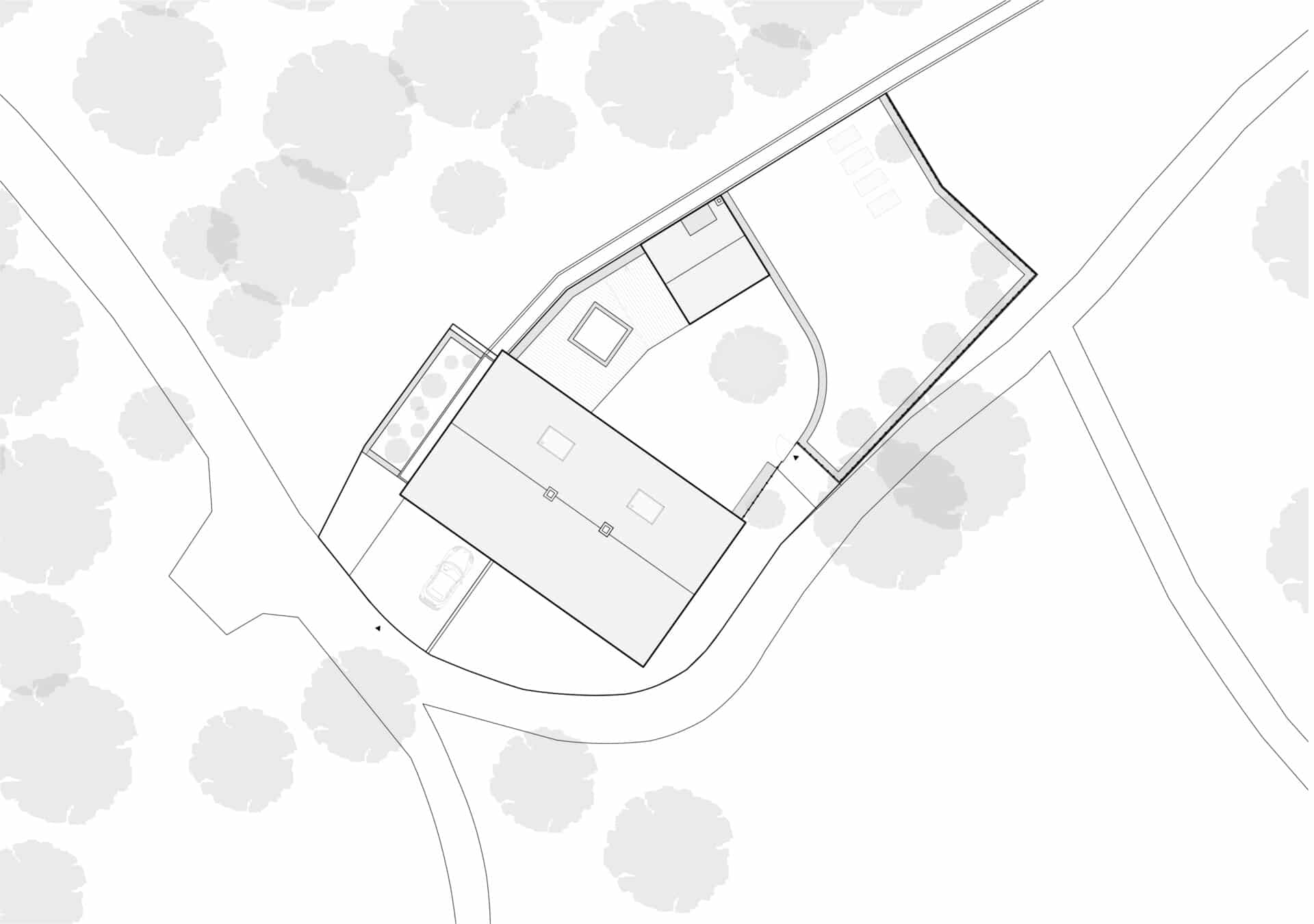
Zvenku se dům nenamáhá dominovat prostoru, který je již dlouho definován jednotlivými stavebními objekty. Mlýn doplňuje drobnou zahradní stavbou určenou k odpočinku a uzavírá tak prostor mezi domem a zahradou do jednoho celku. Za plotem občas hlaholí náhon, který kdysi dodával život mlýnskému kolu. Tyto časy jsou však dávno pryč, obilí se tu nemele už víc než půl století. Přesto bychom rádi ve svém projektu zdůraznili vodu prostřednictvím drobné kinetické instalace, která občas připomene staré časy.

Práce s klienty, kteří mají k místu vazbu přes několik staletí, je zajímavou exkurzí do minulosti i do duše místa. Snažíme se zacházet s cennými historickými relikviemi opatrně, ale zároveň důvěřujeme intuici klienta a jeho emocím. On sám nejlépe ví, kde je hranice jeho vztahu s minulostí a co je pro něj opravdu cenné.