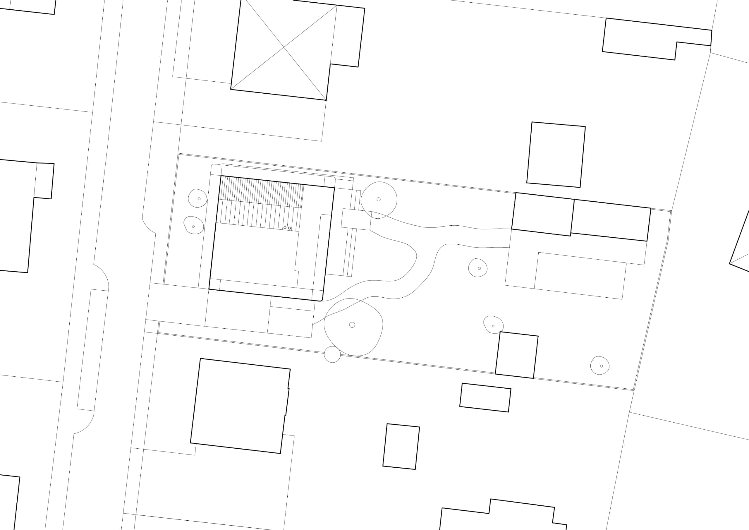
Lokace: Zbuzany, ČR
Investor: soukromý investor
Vizualizace: Lumion 11.0.2.
Generální projektant: Mjölking s.r.o.

Vila Bóža

Jdeme po ulici, pozorujeme okolní domy s nánosem a tíhou, kterou posbíraly v průběhu několika desítek let. Jeden dům je však něčím ojedinělý. Blížíme se
k němu, k domu co se jeví jako obyčejný, ale při bližším pohledu začínáme chápat jeho podobu zikkuratu.
Mezitím co Vašek na střeše sklízí letošní úrodu pilných včel, Bóža po rampě obratně sjíždí dolů. Bořek letmo zamává z okna své herny a Kristýna přináší ven talíře plné dobrého jídla. Na zahradě vrcholí příprava na nedělní grilovačku.

Branka k domu svým lehce skřípavým zvukem značí, že jsme vítáni. V pozadí je slyšet jen tlumený křik sousedských dětí, které využívají posledních letních dnů u bazénu. Procházíme červenými vrátky a vcházíme dovnitř.
Příchod do domu

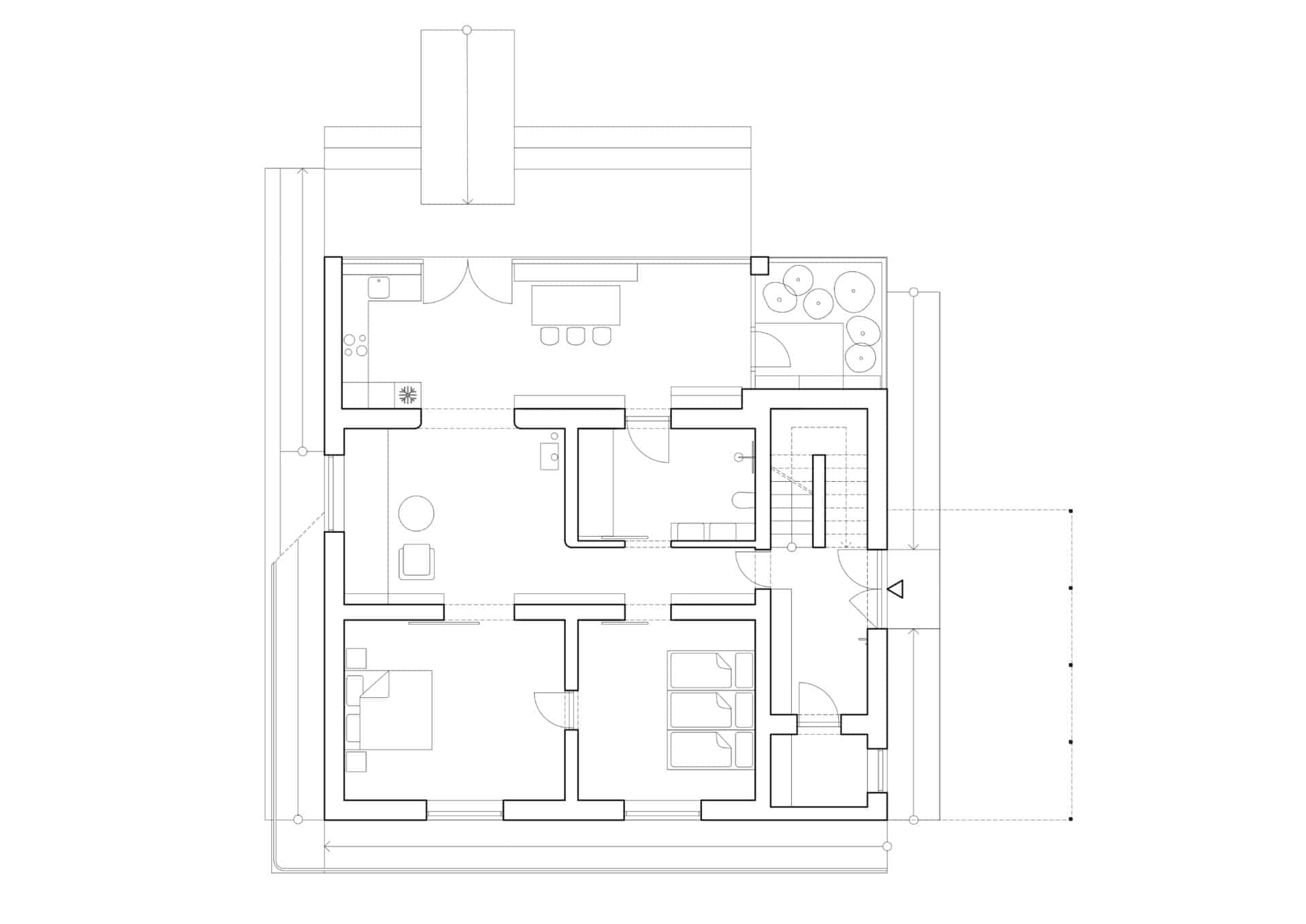
Za prosklenými vstupními dveřmi se skrývá jednoduchý prostor, kterému hned od prvního pohledu dominuje volnost a otevřenost. Postupujeme domem kolem ložnic připravených na večerní odpočinek. Bóža prosviští na svém vozíku chodbou, míjí nás a mizí za zaobleným rohem. Tam se totiž otevírá srdce spodního bytu. Prosklená stěna nechává proniknout východní světlo do kuchyně, která je spojena s jídelnou a obývacím pokojem. Ale je tu i skleník. Naplněný k prasknutí nabízí uzrálé plody paprik a dalších, na první pohled, těžce rozpoznatelných rostlin. Dveře na terasu jsou otevřeny skoro po celé léto a my tak máme možnost cítit zápach dřevěného uhlí z právě se rozpalujícího grilu.
Jdeme nahoru

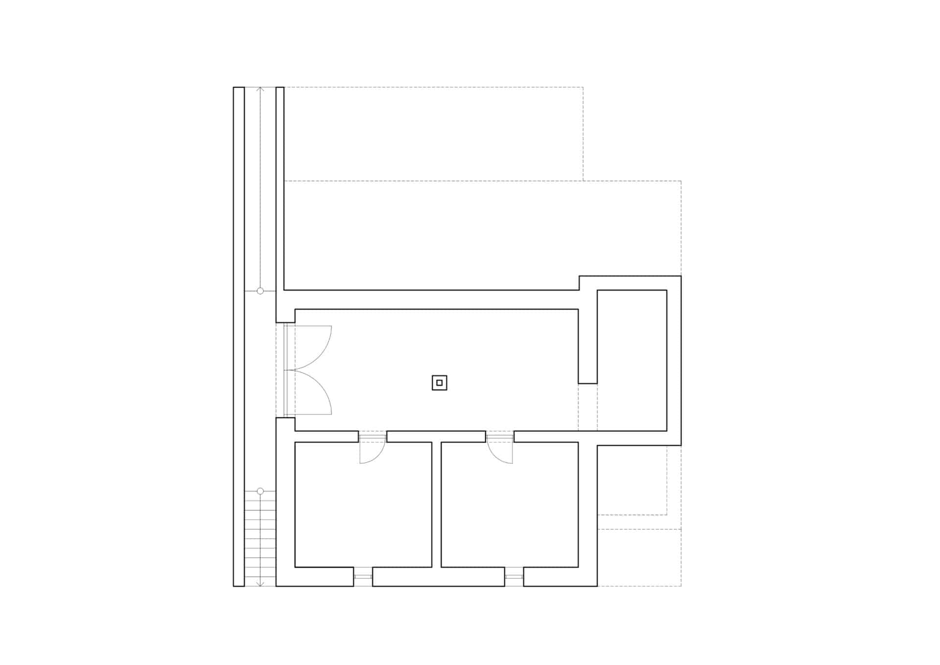
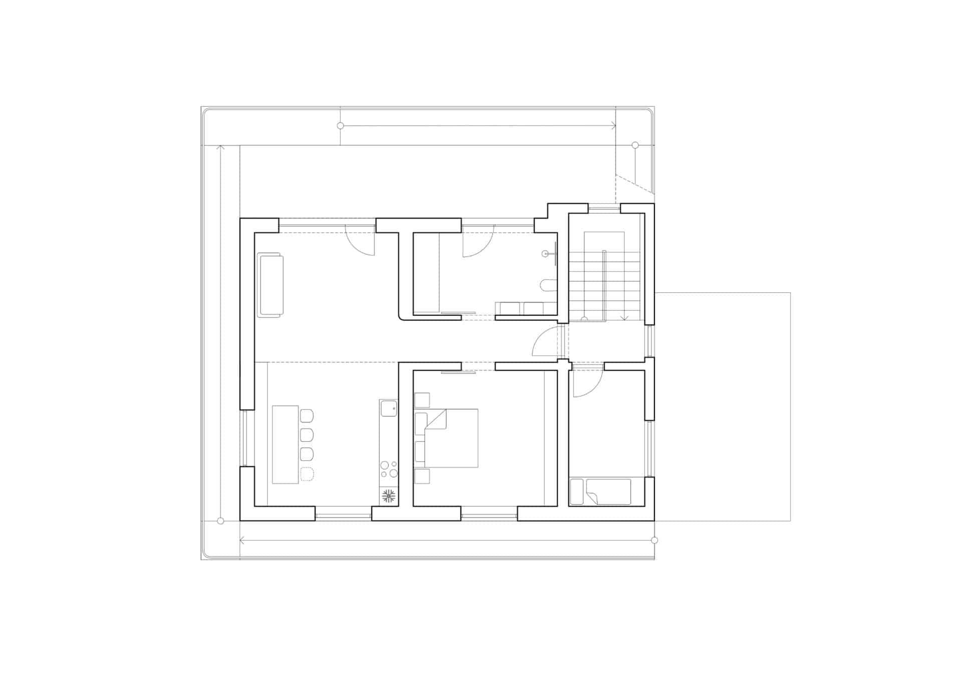
Bořek přibíhá na zahradu. V ruce drží lego a nabádá nás, abychom se přišli podívat na jeho nově rozestavěnou stavebnici. Tak tedy jdeme. Stoupáme po zachovaném schodišti do druhé úrovně domu. Mezitím Bóža obkroužila celý dům a vyjela po rampě do svého království. Bořek už nám ukazuje sbírku svých stavebnic a plný energie nás táhne dál horním bytem. Je hned znát, že tu vládne Bóža. Vše je uzpůsobeno jejímu kaskadérskému manévrování na vozíku. Přes prostor kuchyně, která je otevřena do krovu střechy nabízející přespání kamarádů, vycházíme až na samotnou terasu. Z té se dá vidět celá zahrada. Zelená, ale blednoucí v důsledku blížícího se podzimu.
Včely

Shlížíme do zahrady a kocháme se. Najednou nás vyruší hlas Vaška. „Kluci, to musíte vidět!“, Otáčíme zrak a díváme se se zakloněnými hlavami směrem výš. Jdeme tedy po rampě dál nahoru. Přicházíme na střešní terasu. Za bzukotu včel se nebojácně díváme na úly, které teď už zejí prázdnotou. Je jasno a ze střechy je vidět hodně daleko.
Teď už nás však volá ze zahrady Kristýna. Gril osmahl první várku pokrmů a jejich vůně se line celým blízkým okolím. Scházíme po rampě. Všichni už jsou rozeseti po zahradě. Slunce pomalu zapadá a v klidné hladině bazénu se odráží její okolí. Je konec léta, ale tenhle večer ještě nekončí.