Lokace: Liberec, ČR
Investor: soukromý investor
Projekt: 2023
Realizace: 2024
Plocha: 110 m²

Spolupráce:
Projekt: Mjölking, s.r.o.
Základová deska: 1ku1, s.r.o.
Dřevostavba: Nema, spol.s.r.o.
Fasádní výplně: JANOŠÍK OKNA-DVEŘE s.r.o.
Energetická koncepce: Skácel Solár
Betonové podlahy: 1ku1, s.r.o.
Interiér: AD 1150, s.r.o.
Obrazy: Evžen Šimera

Vila Dorka

Já a Marie budeme stavět dům. Objemově skromná stavba dostala pracovní jméno Dorka. Malá bílá kníračka mojí mamky se stala symbolem funkčního
kompaktního řešení. V zimě vždycky trochu přibere, tak bude nový dům spíše letní verze tohoto trochu rozmazleného psíka. Maličkou parcelu máme na
místě, které se v minulosti jmenovalo Sonnenbad a proháněli se tam před sto lety nahatí milovníci slunečních paprsků. S lesem za zády a Libercem před
očima z ní zíráme na Ještědský hřeben. Do centra to není daleko a Lesní koupaliště je skoro za domem.
„Marie sedí v okně a čte si knihu. Oknem profukuje jemný větřík. Její vlasy se vlní jako mořské řasy v proudu moře někde v průlivu u ostrova Skrova, v chladných vodách daleko za polárním kruhem. Paprsky slunce se tříští o hranu střechy a dopadají na stránky knihy. Vyhřáté žulové kameny hřejí do nohou a fasáda voní dřevem. Marie se usměje, dá si pauzu, aby si tenhle okamžik užila. Její vlasy se dál pohupují ve větru, jako by chtěly zachytit každou myšlenku, každý pocit, každou vůni. Podívá se na horizont, kde se v odpoledním slunci blýská majestátní Ještěd a pak se znovu ponoří do knihy a nechá se unášet dalším dobrodružstvím.“
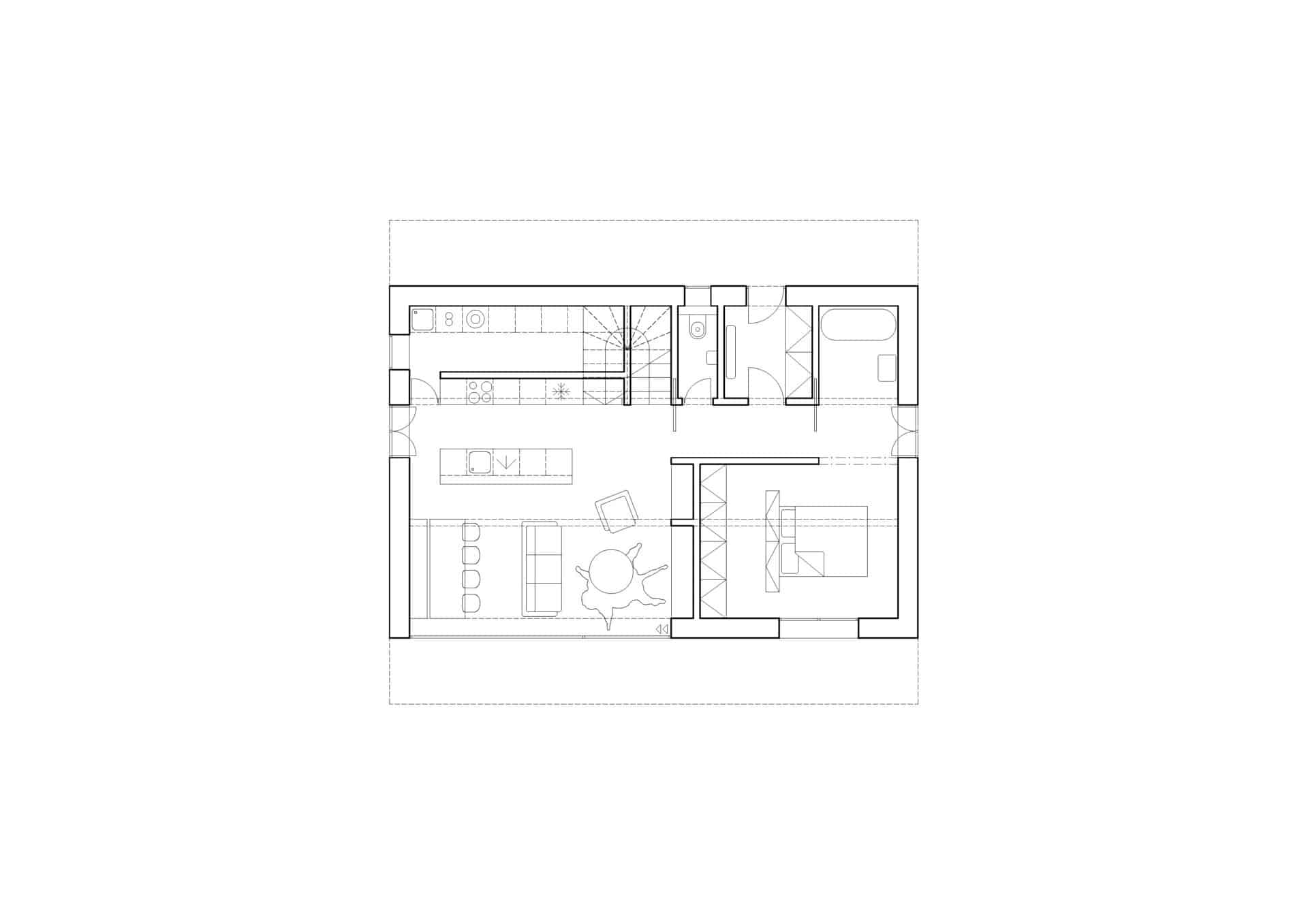
Dispozice našeho domu není složitá, ale je hodně promyšlená. Musí naplnit naši touhu po skromném, ale velkorysém bydlení. Víme, co chceme, a tak byl proces vymýšlení překvapivě hladký. Nebývá to vždy jednoduché, když si dva architekti kreslí společně dům. Na divokém pozemku vyroste drobná, tvarově jednoduchá dřevostavba se sedlovou střechou. Dispozičně dům nevykazuje žádné velké excesy. V přízemí je obytný prostor s kuchyní, technické zázemí domu a naše ložnice s malou koupelnou. Tam, kde to bylo možné, se jednotlivé místnosti otevírají až do krovu a využívají tak hluchá místa horní dispozice.

„Sjíždím na kole z Maliníku domů. Na Rudolfově cítím, jak se mísí chladný vzduch z jeskyní Valhaly s letním slunečním teplem z jižních svahů Jizerských hor. Kateřinské serpentýny prořezávají nekonečnou masu zeleně okolních bučin a já se v té nádheře spouštím kopce dolů. Otevírám dveře domu a ledabyle opírám kolo o stěnu. Tretry letí do rohu a já vcházím do obýváku. Vlnky na hladině malého bazénku odrážejí sluneční svit na stěny obývacího pokoje. Stříbřitá prasátka se mihotají na tmavých stěnách a z venku ševelí listy bříz. Jako by mi našeptávaly, abych se rozběhl ven a skočil do vody. Odraz vodní hladiny se roztříští na tisíc kousků a trvá ještě chvilku, než se zase uklidní a objeví se drobné stříbrné skvrnky, které tancují všude po stěnách. Je letní odpoledne. Klasy suché trávy o sebe šustí ve větru a nekonečný den pomalu ustupuje noci.
O patro výš pod střechou jsou další dvě ložnice s koupelnou a záchodem. Obě mají okna nejen ven, ale i do o obývacího prostoru a zádveří. I koupelna je s obytným prostorem propojena zaskleným otvorem, a tak máte přehled o dění v obýváku i když si čistíte zuby. Vnitřní povrchy jsou kombinací dřevěných povrchů CLT panelů, betonových broušených podlah, barevného lina a obkladu z liberecké žuly. Lom máme za domem, tak by byla škoda ho nevyužít. Žula se propíše i do zpevněných povrchů okolo domu a do exteriéru. Hodně času trávíme venku, a tak jsme kladli velký důraz na propojení interiéru se zahradou. Proto má dům nejenom velká okna, ale také přesahy střechy, které ho jednak v létě chrání před přehříváním, ale také rozšiřují užitný prostor krytý před nepřízní libereckého počasí. Přímo před největším oknem je dřevěná terasa a malý bazének. Ten poslouží v létě k osvěžení, v zimě zase k otužování.
Okolí domu tvoří až na bezprostřední okolí strmý svah. Abychom zabránili úrazům nás a našich vzácných návštěv, musíme poprosit pana bagristu, aby si s terénem zkusil trochu pohrát. Snad už se pak nikdo neskoulí ze svahu dolu. Pokud se něco takového stane, nepropadejte panice, budete zachyceni spletí rododendronů, bříz a mladých boroviček. A když se vám přeci jen podaří dokoulet se až na dolní část zahrádky, zjeví se před vámi objekt bývalé trafostanice přestavěný na letní dům pro hosty. Na střeše trafostanice, která je přístupná z horní zahrady, je malá terasa mezi záhony. Tak jestli se vám už nechce nahoru, klidně si odpočiňte v trafačce. Klíče jsou pod květináčem.
OkolíDolní patro dostane tmavou úpravu. Temné tóny interiér zútulní a dodají mu punc luxusu. Tmavá barva je také milosrdnější k drobný vizuálním chybám, které se na dřevě sem tam objeví. Vestavný nábytek bude důležitou součástí domu. Čím je stavba menší, tím propracovanější systém úložných prostor potřebuje. Kuchyně, koupelny a parapety budou obloženy žulou. S vybavením spotřebiči nám pomůže Tomáš z AD 1150. Dobře se vyzná v jednotlivých značkách a umí poradit. Dokonce nám dodá i linoleum na schodiště a do horního patra. Interiér doplní naše skromná sbírka obrazů. Těšíme se na nejnovější přírůstky od Evžena Šimery. Sedí tam jak prdel na hrnec. S fasádou si pořád nevíme rady. Buď ji opálíme, nebo prkna povrchově upravíme dřevním térem. Dům bude černej jako bota nejen z venku, ale i zevnitř. S Jizerkama za zády budeme společně my a náš dům koukat do nekonečně zvrásněné krajiny na podnosu stotisícového města. Tak ať je nám tam dobře!
Vila Dorka je dřevostavba. Obvodovou konstrukci tvoří skladba z CLT panelů a dřevovláknitých desek. Panely jsou v interiéru přiznané, a tak bude dům prostoupen dřevem. Zpracovatel dřeva dodává CLT panely z českých stromů a díky tomu náš dům nemusí cestovat z Finska, či Rakouska. Vila Dorka bude Češka. Realizace dřevostavby se ujmou naši kamarádi. Stavět začneme v březnu, kdy chlapi z 1ku1, vybetonují desku a připraví přípojky. Pak už to poletí. Na konci dubna přiveze jeřáb jednotlivé části dřevostavby. Díky systému od firmy Nema by hrubá stavba měla stát za pouhých sedm dní! Na stavbu přijedou panely s přípravou pro veškeré instalace a pak už se tu budou jen střídat jednotlivé profese a dokončovat dům. Hned po kompletaci hrubé stavby nastoupí oknaři a klempíři. Dřevohliníková okna stavbu uzavřou a my začneme připravovat skladby podlah. O energetický koncept domu se stará Dalibor a jeho firma Skácel solár. Jde především o to, aby systém podlahového vytápění s krbem a fotovoltaickými panely dobře fungoval. Jakmile bude nainstalováno topení, rozvedena elektřina, voda a odpady, nastoupí opět 1ku1. Realizace jejich betonových podlah máme v několika domech a fungují skvěle. V kuchyni mi pořád něco padá na zem a když na to podlahy nejsou připravené, moc dlouho neobstojí. Podlaha v horním patře bude mít skladbu suchou. Na těch pár metrů čtverečních se nám nechtělo pumpovat beton do patra a riskovat pohledovou konstrukci dolních částí stropu. Tím všechny hrubší práce na domě skončí a začne se finalizovat interiér.
Jsme zahaleni teplým letním večerem. Vzduchem se vine nasládlá vůně grilovaného masa a čerstvých bylinek bičovaných jižním sluncem. Všichni se těší na večeři. Jen co začne sluneční kotouč olizovat vrchol Vápenného, nastane velká hostina. Na chvilku zvednu oči a poslední paprsek slunce mně zasvítí do tváře, těsně před tím, než zmizí ve vlnách horizontů okolních hor.
Zní to až neuvěřitelně, ale pokud se vše podaří, tak bychom měli započít stavbu na začátku jara a stěhovat se na přelomu léta a podzimu. Ještě nikdy jsme v Mjölku takhle rychle žádný dům nepostavili. Těšíme se, že to zkusíme. A na kom jiném než sami na sobě. Zůstaňte na příjmu a sledujte příběh Vily Dorky. Bude vyprávěn podle skutečnosti