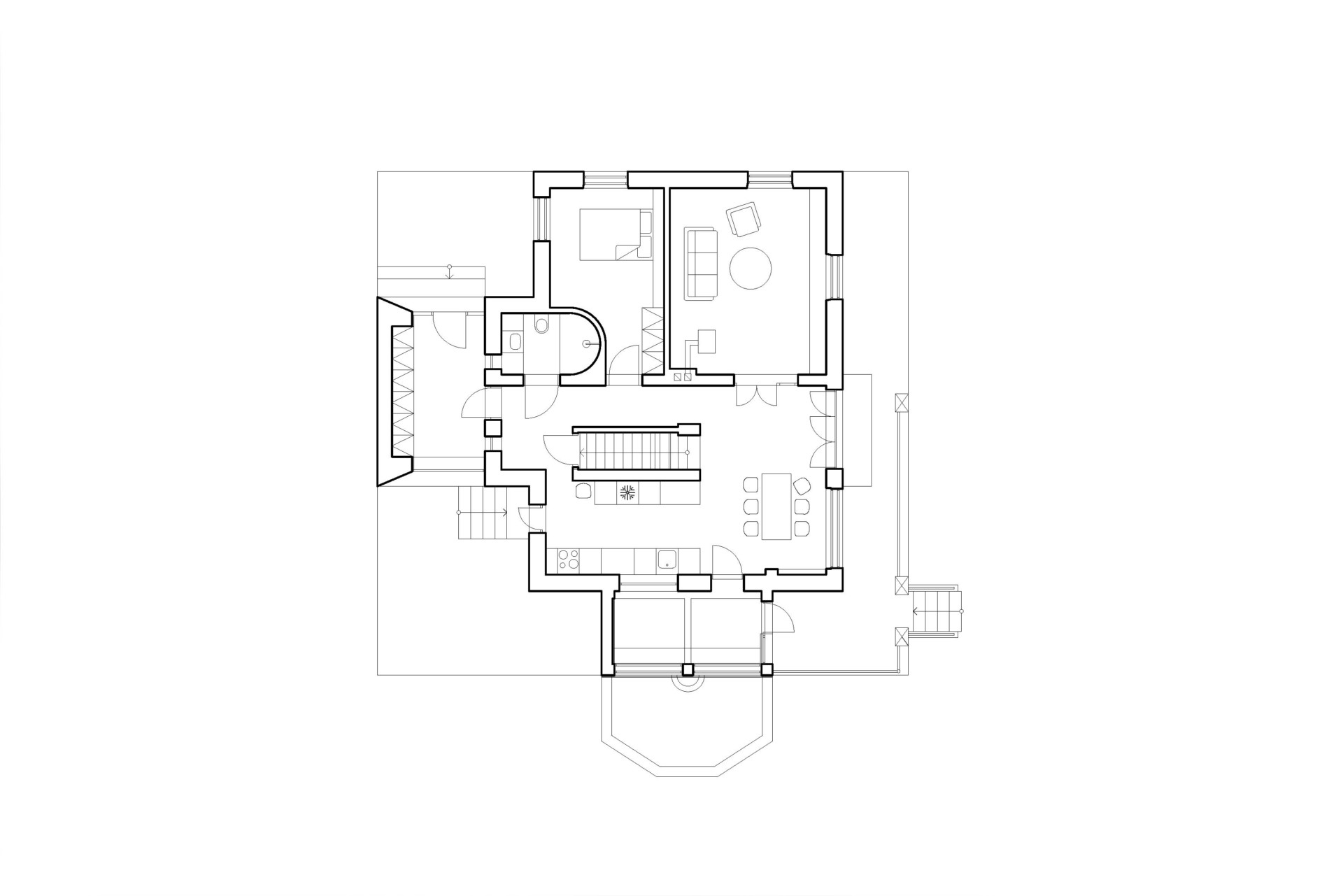
Klára otevřela okno a do ložnice se nahrunul ranní chladivej vzduch. Každý ráno takhle vstává a užívá si jejich dům, kterej už dávno není nově opravenej. Dneska má Gréta dvacátý narozeniny. Petr jel pro kytku a na nádraží a Klára musí zatím rychle upéct borůvkovej koláč, co má Gréta tak ráda. Kuchyni provoněla vůně kynutýho těsta s drobenkou a z otevřený trouby unikaly obláčky sladkých chutí a připálený šťávy z borůvek, která přetekla z pekáče na dno trouby. Gréta je na cestě z Vídně, kde studuje vysokou. Cvakla branka a to znamená, že ti dva už jsou z letiště doma. „Kiliáne, slez dolu, ségra je tu!“ křikne na dorůstajícího týnejdžra Klára a letí ke dveřím. Ještě než stihne proběhnout chodbou, uvědomí si, že to Gréta vzala předem kolem fontány, aby mámu překvapila. Kufry bouchnou o dlažbu v zimní zahradě a ozve se: „Uf, konečně doma.“